Panasonic Inverter Refrigerator model NR-BY602XS - suddenly not cold overnight

Collapse
X
 
  • Time
  • Show
Clear All
new posts

  • beetle1303
    replied
    Re: Panasonic Inverter Refrigerator model NR-BY602XS - suddenly not cold overnight

    I insulated the 2 wires (brown and blue) and power up without the overload protector just to confirm if the circuitry is working - and compressor not starting up as expected.

    Then I put everything back per normal, power up and rerun the Self Diagnostic one more time (which I have done multiple times), and paid really close attention to the indicator displays at the door panel - OMG!

    2 of the indicator lights blinked a few times then went off. I waited for a minute or so, nothing happened and all the indicator display lights were off. I have done this a few times and it always the same outcome.

    I was thinking since the outcome is nothing lighted up - so the fault should be the at the end of the flowchart:
    • Faulty compressor motor.
    • Compressor lock.

    Now, looks like it is at #4:
    • Defect of control PCB.
    • Communication error between IC1 & IC201

    So I guess I just have to source for a working controller board!
    Attached Files

    Leave a comment:


  • beetle1303
    replied
    Re: Panasonic Inverter Refrigerator model NR-BY602XS - suddenly not cold overnight

    Originally posted by petehall347
    so it is really 0.2 ohms which seems good

    have you tried fast freeze yet ? it should bypass the thermostat .
    You meant the Fast Freeze button on the fridge? Yes, it has no effect on the evaporator.

    I should clarify, that the fridge is always power down. Each time I did some checks, or taking measurements, I would power it up for like 5- 10 minutes, then I will power down the fridge.

    The longest I have left it power up is ~30 minutes, and still no cool air at all..

    Leave a comment:


  • beetle1303
    replied
    Re: Panasonic Inverter Refrigerator model NR-BY602XS - suddenly not cold overnight

    Originally posted by stj
    the + end of the bridge rectifier is darker, marker pen, soot, burn mark??
    I think it's shadow from the camera phone. This pics is clearer, look normal.
    Attached Files

    Leave a comment:


  • petehall347
    replied
    Re: Panasonic Inverter Refrigerator model NR-BY602XS - suddenly not cold overnight

    Originally posted by beetle1303
    Weird.. Now it reads 0.7 ohm, and touching the 2 leads together reads 0.5 ohm.
    so it is really 0.2 ohms which seems good

    have you tried fast freeze yet ? it should bypass the thermostat .
    Last edited by petehall347; 04-21-2020, 06:54 AM.

    Leave a comment:


  • stj
    replied
    Re: Panasonic Inverter Refrigerator model NR-BY602XS - suddenly not cold overnight

    the + end of the bridge rectifier is darker, marker pen, soot, burn mark??

    Leave a comment:


  • beetle1303
    replied
    Re: Panasonic Inverter Refrigerator model NR-BY602XS - suddenly not cold overnight

    Weird.. Now it reads 0.7 ohm, and touching the 2 leads together reads 0.5 ohm.

    Leave a comment:


  • petehall347
    replied
    Re: Panasonic Inverter Refrigerator model NR-BY602XS - suddenly not cold overnight

    try putting your meter leads together then deduct the reading from 3.2 .
    have you tried fast freeze function ?

    Leave a comment:


  • beetle1303
    replied
    Re: Panasonic Inverter Refrigerator model NR-BY602XS - suddenly not cold overnight

    Originally posted by petehall347
    that thermal looks broken ...
    If it tested resistance of 3.2 ohms across pin 1 & 3, does it mean still good? If not, how to determine it's still functional?

    Leave a comment:


  • beetle1303
    replied
    Re: Panasonic Inverter Refrigerator model NR-BY602XS - suddenly not cold overnight

    Originally posted by R_J
    Check the resistance between pins 1 & 3, it should check like a short. It trips with excess current not voltage.
    The resistance between pins 1 & 3 is 3.2 ohms.

    Noted your correction, important for my education, thank you.

    Presumably, if the compressor draws too high current, the temperature rises above the limit and trips open this protector, and cut off the power to all 3 terminals of the compressor?

    In my case, the voltage among all 3 terminals were 160VAC soon after powered up, does this mean the compressor is not overloaded?

    Leave a comment:


  • beetle1303
    replied
    Re: Panasonic Inverter Refrigerator model NR-BY602XS - suddenly not cold overnight

    Originally posted by stj
    i suspect the motor may have a bad phase or drive line,
    if it hums then the electronics are trying to run it.
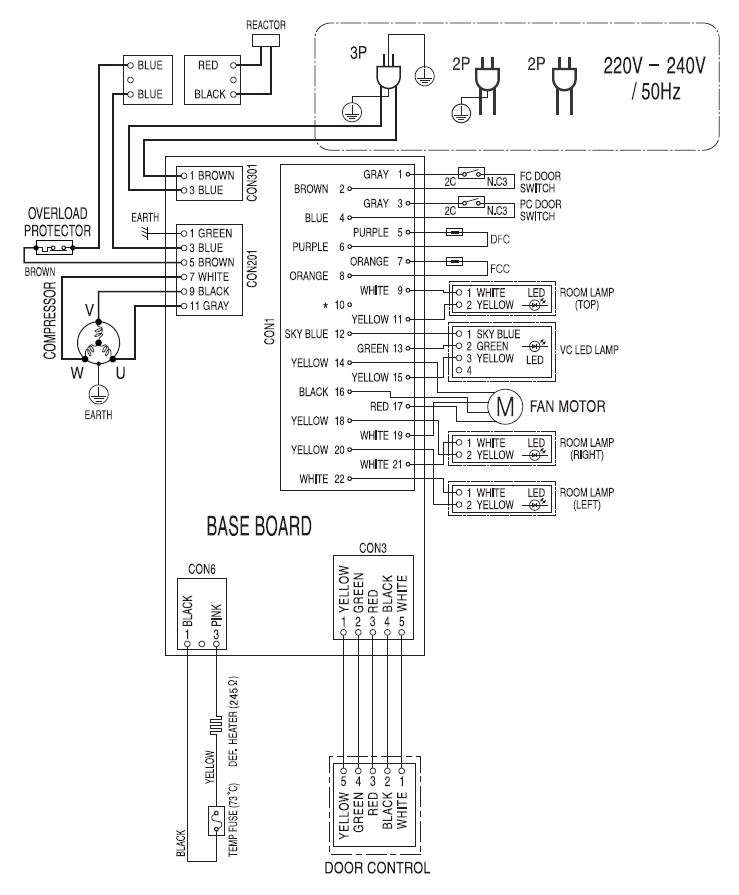
    we need board pics.
    Here are the controller board pics, and connectors diagram.
    Attached Files

    Leave a comment:


  • beetle1303
    replied
    Re: Panasonic Inverter Refrigerator model NR-BY602XS - suddenly not cold overnight

    Originally posted by Per Hansson
    Could you put this original picture somewhere so I can make some tests with it?
    (Obviously you would need to use some other website if you get the error above here...)
    Here's the link for 1 such pic that caused this error: https://we.tl/t-lLIq3zXP41

    ** I just did a resized from 15mb to 4mb, then it loads OK.
    Last edited by beetle1303; 04-20-2020, 10:10 PM.

    Leave a comment:


  • R_J
    replied
    Re: Panasonic Inverter Refrigerator model NR-BY602XS - suddenly not cold overnight

    Originally posted by beetle1303
    On the overload protector - how do I determine if it tripped open due to over-voltage or not?
    Check the resistance between pins 1 & 3, it should check like a short. It trips with excess current not voltage.

    Leave a comment:


  • petehall347
    replied
    Re: Panasonic Inverter Refrigerator model NR-BY602XS - suddenly not cold overnight

    Originally posted by beetle1303
    Based on this sensor specs, I believe the 2 sensors I tested measuring at 1.58kOhm at ~26-28c, and 5.8kOhm at 0c should be working normally.

    On the overload protector - how do I determine if it tripped open due to over-voltage or not?
    that thermal looks broken ...

    Leave a comment:


  • RJARRRPCGP
    replied
    Re: Panasonic Inverter Refrigerator model NR-BY602XS - suddenly not cold overnight

    Originally posted by Per Hansson
    Could you put this original picture somewhere so I can make some tests with it?
    (Obviously you would need to use some other website if you get the error above here...)
    Was it really bigger than 128 MiB?! WTF!

    It looked like I calculated the bytes-to-megabytes correctly.

    Normally, this would look like a server-end problem.
    Last edited by RJARRRPCGP; 04-20-2020, 01:45 PM.

    Leave a comment:


  • Per Hansson
    replied
    Re: Panasonic Inverter Refrigerator model NR-BY602XS - suddenly not cold overnight

    Originally posted by beetle1303
    *for some reasons, I frequently get this error when uploading pics:

    Fatal error: Allowed memory size of 134217728 bytes exhausted (tried to allocate 27000001 bytes) in /home/badcaps/public_html/forum/includes/class_image.php on line 2390

    Any idea why this is happening?
    Could you put this original picture somewhere so I can make some tests with it?
    (Obviously you would need to use some other website if you get the error above here...)

    Leave a comment:


  • stj
    replied
    Re: Panasonic Inverter Refrigerator model NR-BY602XS - suddenly not cold overnight

    i suspect the motor may have a bad phase or drive line,
    if it hums then the electronics are trying to run it.
    we need board pics.

    Leave a comment:


  • RJARRRPCGP
    replied
    Re: Panasonic Inverter Refrigerator model NR-BY602XS - suddenly not cold overnight

    Originally posted by beetle1303
    I believe this is due to the file size too big. My phone pics are 3-4mb and I had to do a simple screen capture to reduce the size, and it works.
    For me, it looks like I can upload the original photos from my phone and they end up getting downsized automatically instead of an error. Why is that? Are mine still smaller, even when quality very high?
    Last edited by RJARRRPCGP; 04-20-2020, 09:35 AM.

    Leave a comment:


  • beetle1303
    replied
    Re: Panasonic Inverter Refrigerator model NR-BY602XS - suddenly not cold overnight

    Based on this sensor specs, I believe the 2 sensors I tested measuring at 1.58kOhm at ~26-28c, and 5.8kOhm at 0c should be working normally.

    On the overload protector - how do I determine if it tripped open due to over-voltage or not?
    Attached Files

    Leave a comment:


  • beetle1303
    replied
    Re: Panasonic Inverter Refrigerator model NR-BY602XS - suddenly not cold overnight

    Originally posted by RJARRRPCGP
    That's strange, I've had no problems uploading images during the last time I uploaded photos.

    I think it's because they are being shrunk for me...
    I believe this is due to the file size too big. My phone pics are 3-4mb and I had to do a simple screen capture to reduce the size, and it works.

    Leave a comment:


  • beetle1303
    replied
    Re: Panasonic Inverter Refrigerator model NR-BY602XS - suddenly not cold overnight

    Originally posted by budm
    "When probed at the cable connector, it measure 1.58k ohm, but when power up and probed at the connector pluck back onto the controller board, it measured 0 ohm, ~2VDC.. "
    You do not perform resistance reading when the circuit is powered, you can easily damage your meter. Please read your meter user manual.
    Noted, and thank you. I am learning as I do not have prior training or experience.

    Leave a comment:

Related Topics

Collapse

  • SuperAman
    Hitachi Refrigerator R-Z270AUN7KV not cold.
    by SuperAman
    Hi, I have a Hitachi Refrigerator R-Z270AUN7KV. The fridge is on the bottom and the freezer is on the top. My problem is no matter what setting (1-9) the freezer is, the fridge is not getting cold but the freezer is always cold. I have tried all combination of settings for the fridge (Min, Mid, Max) but nothing. Fridge is always hot now. Before it would sometimes do this but now always fridge is hot. I believe the service center peeled some of the foil from the thermostat and that seemed to help a few years back. I replaced the thermostat recently and it worked off and on for a few weeks but now...
    10-29-2020, 02:01 AM
  • x_orange90_x
    Vizio E55-E1 bad backlights or bad inverter?
    by x_orange90_x
    I just got this tv today and it appeared to have no backlight on. After taking off the rear cover and checking again in the dark I can see that MAYBE one quadrant is lit.. But still it's quite dim. I was going to check the LEDs with my tester, and I found LED 1 and LED 2 + pins on the wire from the inverter, but I couldn't identify a ground. Nonetheless I tried using a mounting screw on the inverter board and also the chassis as ground but regardless my tester reads 300 which is what it reads when there is no voltage draw.

    I don't know how exactly to test the inverter itself. Is it...
    01-29-2025, 09:24 PM
  • Gentian
    APSINT3636VR 3600W APS INT Series 36V DC 230V AC Inverter/Charger schematic
    by Gentian
    I have a tripp-lite aspint 3636vr inverter charger which blow some of mosfet transistors. I replaced them repaired also the driver circuit and tested but the mosfets burn again.

    It work very well as inverter and also as charger if I let the rear switch in auto mode (inverter) and charger only(charging) but in auto when I connect the feed line 220V AC first time it pass ok to line and start charging the batteries but when I remove the feed line it pass to inverter mode and if I do it again the second time when passing from charging to inverter the Main transformer start making a...
    03-06-2023, 07:07 AM
  • valvashon
    Insignia NS-LCD19-09 (PS OK, Inverter problem?)
    by valvashon
    For some reason I'm just not going to let this 19" TV defeat me. I guess because I have a schematic to work from I feel like I'm oh so close.

    History- while adding a turn-on circuit I let a small screw roll under the power board. Worked through all of that circuitry, probably replacing a MOSFET and PWM controller that were not bad but I was following the service manual. Finally figured out that the power supply is in working order when the inverter section (for the backlights) is disconnected. When the +12 supply to the inverter is disconnected the +12 and +5 will come up...
    01-04-2024, 01:44 PM
  • eccerr0r
    A modified sine wave inverter + a grid tie inverter?
    by eccerr0r
    If I had a solar fed grid tie inverter (GTI), a modified sine wave inverter, and a power outage occurred, what would happen if you disconnected mains, backfed the modified sinewave inverter (MSI) into house power, and hooked up the GTI to the output of the MSI, would it work?

    Next thing is trying to charge the batteries using solar power, but that's another issue ...
    08-31-2023, 09:14 PM
  • Loading...
  • No more items.
Working...