Macbook A1932 Intermittent Backlight Issue 820-01521

Collapse
X
 
  • Time
  • Show
Clear All
new posts
  • Instafixx
    Badcaps Veteran
    • Jul 2022
    • 374
    • India

    #41
    Re: Macbook A1932 Intermittent Backlight Issue 820-01521

    Originally posted by mon2
    Can you share the meter setting?

    If you short your meter probes, do you see the same resistance readings?
    FINAL UPDATE.
    Replaced the Fuse F6700 yesterday and the trackpad started giving very light haptic feedback. Today morning it is giving proper haptic feedback but the backlight issue is back again.

    Removed the Fuse F6700.
    Voltage at Pin 1 is 12.6V and Resistance to Ground at Pin 1 is 470.

    After Removing the Fuse, the Backlight Issue is fine but the Haptic is Gone Again.
    Last edited by Instafixx; 08-17-2022, 01:32 AM.

    Comment

    • Instafixx
      Badcaps Veteran
      • Jul 2022
      • 374
      • India

      #42
      Re: Macbook A1932 Intermittent Backlight Issue 820-01521

      FINALLY
      We ahead and replaced the R5610 and L6700 both connected to the Fuse F6700. See Attached
      Now there is no Intermittent Backlight issue or Trackpad Haptic Issue. Will keep it under observation for 1 more day and let you know.

      Would like to thank BADCAPS FORUM and Mon2 for prompt responses and guidance.
      Attached Files

      if you find these attachements useful please consider making a small donation to the site

      Comment

      • Instafixx
        Badcaps Veteran
        • Jul 2022
        • 374
        • India

        #43
        Re: Macbook A1932 Intermittent Backlight Issue 820-01521

        Originally posted by mon2
        Are you able to probe the pads @ J6700 connector ?

        The J6700 connector also contains the signals of interest.
        We ran a jumper wire from C6712 and the screen is giving issue.
        When there is No Image, the Voltage still remains 1.8V.


        Removing F6700 solves the Backlight issue but the Trackpad Haptic Starts giving problem.

        Current Status of the Board -
        Replaced F6700,L6700 and R5610.

        I am in a total fix. Please help.

        Comment

        • mon2
          Badcaps Legend
          • Dec 2019
          • 14794
          • Canada

          #44
          Re: Macbook A1932 Intermittent Backlight Issue 820-01521

          When the lid is closed, what is the voltage at C6712?

          Is this an image or backlight issue? Can you see the graphics with a flashlight around the front face of the display when there is no display?

          Are you able to monitor the lcd backlight voltage when the logic board is mounted in the case?

          Comment

          • Instafixx
            Badcaps Veteran
            • Jul 2022
            • 374
            • India

            #45
            Re: Macbook A1932 Intermittent Backlight Issue 820-01521

            Originally posted by mon2
            When the lid is closed, what is the voltage at C6712?

            Is this an image or backlight issue? Can you see the graphics with a flashlight around the front face of the display when there is no display?

            Are you able to monitor the lcd backlight voltage when the logic board is mounted in the case?
            When the LID is closed, C6712 has 0 Volts.
            Its an Image Issue. Cannot see anything with the flashlight.
            The issue is very erratic, doesnt happen always - It happened 2 times now and then with LID open and No Image on Screen the voltage at C6712 was 1.8V.

            The logic Board is mounted , tell me which components to check?

            Comment

            • mon2
              Badcaps Legend
              • Dec 2019
              • 14794
              • Canada

              #46
              Re: Macbook A1932 Intermittent Backlight Issue 820-01521

              If you remove the track pad fuse, the display will always show an image?

              What is the voltage at c6712 when the track pad fuse is removed?

              Comment

              • Instafixx
                Badcaps Veteran
                • Jul 2022
                • 374
                • India

                #47
                Re: Macbook A1932 Intermittent Backlight Issue 820-01521

                Originally posted by mon2
                If you remove the track pad fuse, the display will always show an image?

                What is the voltage at c6712 when the track pad fuse is removed?
                Removing the trackpad is necessary? I am pretty sure the trackpad isnt faulty - No Corrosion or Dirt there.

                Comment

                • Instafixx
                  Badcaps Veteran
                  • Jul 2022
                  • 374
                  • India

                  #48
                  Re: Macbook A1932 Intermittent Backlight Issue 820-01521

                  Originally posted by mon2
                  If you remove the track pad fuse, the display will always show an image?

                  What is the voltage at c6712 when the track pad fuse is removed?
                  When we removed the tracpad fuse the Display will function as per normal. Even when the old fuse was damaged and the PPBUS_G3H_TPAD_FLT was getting no voltage the Image Issue was fine for 2-3 days.

                  Comment

                  • mon2
                    Badcaps Legend
                    • Dec 2019
                    • 14794
                    • Canada

                    #49
                    Re: Macbook A1932 Intermittent Backlight Issue 820-01521

                    Do you still have the following from post #10?
                    2. Secondly when we re-assemble the device, it doesnt switch on automatically or by pressing the p[ower button, we have to first put it on charge and then press the power button to switch it on.

                    Comment

                    • Instafixx
                      Badcaps Veteran
                      • Jul 2022
                      • 374
                      • India

                      #50
                      Re: Macbook A1932 Intermittent Backlight Issue 820-01521

                      Originally posted by mon2
                      Do you still have the following from post #10?
                      Yes.
                      When you pull out the battery connector and put it back, You will have to first connect the charger wait for the battery charging sign to come , then press the Power Button for it to switch on.

                      Comment

                      • mon2
                        Badcaps Legend
                        • Dec 2019
                        • 14794
                        • Canada

                        #51
                        Re: Macbook A1932 Intermittent Backlight Issue 820-01521

                        That is not normal. You likely have a leaky mosfet.

                        Remove all power. Meter in resistance mode.

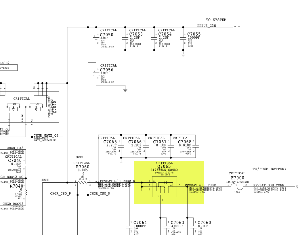
                        Check the resistance of the battery mosfet @ Q7065:

                        source (1-2-3) & drain (5-6-7-8)
                        source (1-2-3) & gate (4)
                        gate (4) & drain (5-6-7-8)


                        Post the resistance values & the scale used on your meter for these measurements.

                        As a quick test - remove Q7065 off the logic board -> then see if the logic board will power up normally without this mosfet using only the external power adapter.
                        Attached Files

                        if you find these attachements useful please consider making a small donation to the site

                        Last edited by mon2; 08-18-2022, 06:18 AM.

                        Comment

                        • Instafixx
                          Badcaps Veteran
                          • Jul 2022
                          • 374
                          • India

                          #52
                          Re: Macbook A1932 Intermittent Backlight Issue 820-01521

                          Originally posted by mon2
                          That is not normal. You likely have a leaky mosfet.

                          Remove all power. Meter in resistance mode.

                          Check the resistance of the battery mosfet @ Q7065:

                          source (1-2-3) & drain (5-6-7-8)
                          source (1-2-3) & gate (4)
                          gate (4) & drain (5-6-7-8)


                          Post the resistance values & the scale used on your meter for these measurements.

                          As a quick test - remove Q7065 off the logic board -> then see if the logic board will power up normally without this mosfet using only the external power adapter.
                          Any reference on how to probe a mosfet? The terms Source,Drain and Gate are alien to me.

                          Yes will remove the mosfet and see if its powering on or not.

                          Comment

                          • piernov
                            Super Moderator
                            • Jan 2016
                            • 4439
                            • France

                            #53
                            Re: Macbook A1932 Intermittent Backlight Issue 820-01521

                            Originally posted by mon2
                            That is not normal.
                            Why?
                            OpenBoardView β€” https://github.com/OpenBoardView/OpenBoardView

                            Comment

                            • mon2
                              Badcaps Legend
                              • Dec 2019
                              • 14794
                              • Canada

                              #54
                              Re: Macbook A1932 Intermittent Backlight Issue 820-01521

                              Originally posted by piernov
                              Why?
                              Does this logic board require a good battery to turn on? I would expect this logic board to turn on with only a good power adapter.

                              Comment

                              • piernov
                                Super Moderator
                                • Jan 2016
                                • 4439
                                • France

                                #55
                                Re: Macbook A1932 Intermittent Backlight Issue 820-01521

                                That's not what they said.
                                However some machines since T2 have inconsistent behaviour regarding the presence of the battery (A2141 is known for that but I believe it's also a problem on some even newer ones), so best to try with a known good battery if all looks good but it doesn't actually turn on or doesn't go past low battery symbol.
                                OpenBoardView β€” https://github.com/OpenBoardView/OpenBoardView

                                Comment

                                • Instafixx
                                  Badcaps Veteran
                                  • Jul 2022
                                  • 374
                                  • India

                                  #56
                                  Re: Macbook A1932 Intermittent Backlight Issue 820-01521

                                  Originally posted by mon2
                                  That is not normal. You likely have a leaky mosfet.

                                  Remove all power. Meter in resistance mode.

                                  Check the resistance of the battery mosfet @ Q7065:

                                  source (1-2-3) & drain (5-6-7-8)
                                  source (1-2-3) & gate (4)
                                  gate (4) & drain (5-6-7-8)


                                  Post the resistance values & the scale used on your meter for these measurements.

                                  As a quick test - remove Q7065 off the logic board -> then see if the logic board will power up normally without this mosfet using only the external power adapter.

                                  Removed the Q7065 and same issue. It still does not boot up by pressing the power button for the first time.

                                  Also now even if we remove the FUSE F6700, there is intermittent No Display Issue along with the Trackpad not vibrating.

                                  Comment

                                  • mon2
                                    Badcaps Legend
                                    • Dec 2019
                                    • 14794
                                    • Canada

                                    #57
                                    Re: Macbook A1932 Intermittent Backlight Issue 820-01521

                                    Check the removed mosfet with a resistance check:

                                    source (1-2-3) & drain (5-6-7-8)
                                    source (1-2-3) & gate (4)
                                    gate (4) & drain (5-6-7-8)

                                    Just to confirm there is no fault with this mosfet.

                                    Then, place back this removed mosfet.

                                    Does this battery charge if left on ?

                                    As per @Piernov's comments, test with a known good battery.

                                    Comment

                                    • piernov
                                      Super Moderator
                                      • Jan 2016
                                      • 4439
                                      • France

                                      #58
                                      Re: Macbook A1932 Intermittent Backlight Issue 820-01521

                                      Originally posted by Instafixx
                                      Yes.
                                      When you pull out the battery connector and put it back, You will have to first connect the charger wait for the battery charging sign to come , then press the Power Button for it to switch on.
                                      This is normal. Looking at the battery connector circuit will explain why.
                                      OpenBoardView β€” https://github.com/OpenBoardView/OpenBoardView

                                      Comment

                                      • Instafixx
                                        Badcaps Veteran
                                        • Jul 2022
                                        • 374
                                        • India

                                        #59
                                        Re: Macbook A1932 Intermittent Backlight Issue 820-01521

                                        Originally posted by mon2
                                        Check the removed mosfet with a resistance check:

                                        source (1-2-3) & drain (5-6-7-8)
                                        source (1-2-3) & gate (4)
                                        gate (4) & drain (5-6-7-8)

                                        Just to confirm there is no fault with this mosfet.

                                        Then, place back this removed mosfet.

                                        Does this battery charge if left on ?

                                        As per @Piernov's comments, test with a known good battery.
                                        This battery charges when left on. There is no power or battery issue.

                                        Do not have a known good battery.

                                        What should i do?

                                        Comment

                                        • mon2
                                          Badcaps Legend
                                          • Dec 2019
                                          • 14794
                                          • Canada

                                          #60
                                          Re: Macbook A1932 Intermittent Backlight Issue 820-01521

                                          This battery charges when left on. There is no power or battery issue.

                                          Do not have a known good battery.

                                          What should i do?
                                          Ok - so this is your known good battery if it the battery charges to the full potential -> can report the # of charges / stats of the battery pack -> can operate without the external adapter (after it is charged) and power the laptop for a normal duration of use.

                                          If the battery depletes quickly, etc. then the pack is weak and should be replaced.

                                          Comment

                                          Related Topics

                                          Collapse

                                          • rounin
                                            MacBook Air A2337 (820-02016) USB-C Port Issue – Only Works in One Orientation (CC Line Problem?)
                                            by rounin
                                            Hi everyone,

                                            I'm working on a MacBook Air 2020 (A2337, board 820-02016) and running into a strange USB-C issue. I've gone through quite a bit of testing and part replacement, but I'm stuck β€” hoping someone here can shed some light.

                                            πŸ›  Original Issue
                                            The machine initially wouldn't negotiate 20V over USB-C β€” stuck at 5V.
                                            Diagnosis showed PP1V5_UPC0_LDO_CORE shorted to ground.

                                            I replaced U3100 (UF400) using a donor board (A2179), and the machine powers on fine now.

                                            ⚠️ New Problem: One USB-C Port Only Works in One Orientation...
                                            04-19-2025, 01:18 AM
                                          • bouch
                                            unlock macbook air A1932 2019
                                            by bouch
                                            hi

                                            i whant unlock macbook pro A1932 2019 whit ibridge 9,3 ;

                                            i change efi files find on files mina T2 activator 1,4 and use for activation mina T2 activator 1,3 , but fault ssh?

                                            i use mina T2 ramdisk activator 1,0 and 3,0 . but whon t work ?

                                            have you other programme or method compatible whit this macbook ibridge 9,3 for bypass ?

                                            I need help or information?

                                            Does anyone have the minat2 activator 1.4 software?

                                            Or did they use it for bypass macbook air 2019 a1932 with new ibridge 9.3?

                                            Thank yo...
                                            03-12-2025, 10:14 AM
                                          • pcbmaniac
                                            MacBook A1278 (3115) No PPBUS_G3H Issue
                                            by pcbmaniac
                                            Subject: Help Needed: MacBook A1278 (3115) No PPBUS_G3H Issue

                                            Hello everyone,

                                            I'm working on a MacBook A1278 with the 3115 logic board and facing an issue with no PPBUS_G3H voltage. Here's what I've checked so far:
                                            1. U7000 Measurements:
                                              • Pin 3 has 0V, even though R7012 shows 16.5V from PPDCIN_S5_CHGR.
                                            2. Resistors:
                                              • I measured R7010 and R7011 with one leg disconnected, and both tested OK.

                                            Based on these findings, I believe U7000 needs to be replaced. However, I have a related question:
                                            • If I also decide to replace the SMC, do I need to order it pre-programmed,
                                            ...
                                            12-02-2024, 04:12 PM
                                          • sofles
                                            Macbook a1707 2017 model 820-00928 GPU issue
                                            by sofles
                                            Hello there

                                            I have problem with Macbook Pro 15" 2017, model 2017, MB code 820-00928.

                                            I bought it as broken with some artefacts on the screen, first I thought that this is problem with ribbon cable but after inspectiing ribbon cable I know it is fine. I tried to reinstall macOs and then I figured out that this must be something with GPU as installation freezes at the end (when drivers are loaded). I installed Windows and was able to install every each of drivers except GPU driver, as soon as I tried to install GPU driver - black screen and restart.

                                            ...
                                            11-21-2024, 05:25 AM
                                          • bajdik
                                            Intermittent Power Issue on Asus X553MA – CPU Voltage Drops ftom 0.89V to 0V
                                            by bajdik
                                            Hello,
                                            I have a problem with an Asus X553MA motherboard. Sometimes the system works fine, but other times the CPU voltage drops to 0V. In most cases, the laptop reboots after a few seconds due to the voltage drop.
                                            Occasionally, it shows the ASUS logo or boots into the BIOS. Sometimes it can stay in the BIOS for hours without issue.
                                            I checked the board with a thermal camera, but I couldn't find any overheating or leaking capacitors.
                                            Unfortunately, I don’t have access to the schematic.
                                            It seems to me that when I bend the board, something changes.
                                            Could this...
                                            08-13-2025, 07:26 AM
                                          • Loading...
                                          • No more items.
                                          Working...