Hi, i have this lenovo N500 that wont start. It wont spin fan.
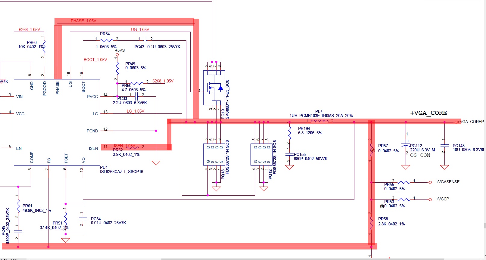
I found that rail i marked on picture is shorted with ground (13ohm) but i cannot find where, please help.
I found that rail i marked on picture is shorted with ground (13ohm) but i cannot find where, please help.
Comment