12v 1uo941243c Relay repairable?

Collapse
X
 
  • Time
  • Show
Clear All
new posts
  • petehall347
    Badcaps Legend
    • Jan 2015
    • 4447
    • United Kingdom

    #61
    Re: 12v 1uo941243c Relay repairable?

    P0725 rpm sensor also known as crank sensor . this will prevent engine starting .
    don't worry about transmission codes yet

    Comment

    • bohaboha
      Badcaps Legend
      • Nov 2012
      • 1017
      • sweden

      #62
      Re: 12v 1uo941243c Relay repairable?

      Originally posted by petehall347
      P0725 rpm sensor also known as crank sensor . this will prevent engine starting .
      don't worry about transmission codes yet
      thank you i´ll start with that one

      Comment

      • bohaboha
        Badcaps Legend
        • Nov 2012
        • 1017
        • sweden

        #63
        Re: 12v 1uo941243c Relay repairable?

        Originally posted by petehall347
        P0725 rpm sensor also known as crank sensor . this will prevent engine starting .
        don't worry about transmission codes yet
        Hello again I have not made any progress because there is a fuse that destroys all the time it is no: 29 on the fuse plate and I do not know to which relay it belongs the schematic on post 47 that you posted differs a little from my plate. can you
        or do you have the schematic of the fuse plate?

        Comment

        • redwire
          Badcaps Legend
          • Dec 2010
          • 3912
          • Canada

          #64
          Re: 12v 1uo941243c Relay repairable?

          I think this car is totalled?

          Comment

          • bohaboha
            Badcaps Legend
            • Nov 2012
            • 1017
            • sweden

            #65
            Re: 12v 1uo941243c Relay repairable?

            Originally posted by redwire
            I think this car is totalled?
            lol no not at all just a little patience and you get out of the misery thanks to petehall347 help

            Comment

            • sam_sam_sam
              Badcaps Legend
              • Jul 2011
              • 6070
              • USA

              #66
              Re: 12v 1uo941243c Relay repairable?

              On some cars there is camshaft sensor and a crankshaft sensor and they give you the same exact error code for both at least this is the case with the car that I have so do not over look this when I get this code I change both of them

              One note some times it can be the wiring harness plug that can give you a bad headache if it has a bad connection in the plug as well and it can be hard to detect and determine if this is your issue or not

              On note about a fuse that blows as soon as you apply power to it you need to find out what is causing this issue use the incandescent light bulb ( or a test light ) instead of the fuse to see if it is a direct short or not you will need a wiring diagram for this car to be able to know all of what is on this circuit

              I have a pickup truck that has an issue when you leave the truck sitting for a couple of weeks and go to start it the battery is completely dead no power what so ever I going to have to figure out what the issue is but two things come to mind first one is the radio and the second one is the alternator bad diodes in it and Ford alternator are the worst for this issue I have had this issue several times in the past

              A few years ago I had issues with the charging system on this truck and it was one of the pins in the wiring harness to the alternator that was near the battery that was the issue that time I had to bypass this pin connection in the wiring harness and put a inline fuse on it

              But this is where a wiring diagram comes in very handy to help you figure out what could be the problem in a given circuit you can troubleshoot it with out a wiring diagram but it takes a lot longer to do

              Here is a case in point I once worked on a car that all of the dashboard lights were on the charging system was not working at all and it turns out to be a wire that goes from the alternator to the dashboard underneath the radiator and had burned it self apart due to a short circuit on the heater for the choke on the carburetor but I was lucky enough that it had a wiring diagram that was available on line helped a lot for this issue

              I hope this helps you with your problems with your car
              Last edited by sam_sam_sam; 09-27-2022, 02:19 PM.

              Comment

              • diif
                Badcaps Legend
                • Feb 2014
                • 6978
                • England

                #67
                Re: 12v 1uo941243c Relay repairable?

                Your blown fuse and 3 error codes point to the ECU or it's wiring.

                Comment

                • bohaboha
                  Badcaps Legend
                  • Nov 2012
                  • 1017
                  • sweden

                  #68
                  Re: 12v 1uo941243c Relay repairable?

                  Originally posted by sam_sam_sam
                  On some cars there is camshaft sensor and a crankshaft sensor and they give you the same exact error code for both at least this is the case with the car that I have so do not over look this when I get this code I change both of them

                  One note some times it can be the wiring harness plug that can give you a bad headache if it has a bad connection in the plug as well and it can be hard to detect and determine if this is your issue or not

                  On note about a fuse that blows as soon as you apply power to it you need to find out what is causing this issue use the incandescent light bulb instead of the fuse to see if it is a direct short or not you will need a wiring diagram for this car to be able to know all of what is on this circuit

                  I have a pickup truck that has an issue when you leave the truck sitting for a couple of weeks and go to start it the battery is completely dead no power what so ever I going to have to figure out what the issue is but two things come to mind first one is the radio and the second one is the alternator bad diodes in it and Ford alternator are the worst for this issue I have had this issue several times in the past

                  A few years ago I had issues with the charging system on this truck and it was one of the pins in the wiring harness to the alternator that was the issue that time
                  that's right camshaft sensor and a crankshaft sensor could be the cause but as you say i need to have wiring diagrams for this car petehall347 has helped me with that hope he continues with it because now i'm stuck with a fuse that blows all the time

                  Comment

                  • stj
                    Great Sage 齊天大聖
                    • Dec 2009
                    • 31262
                    • Albion

                    #69
                    Re: 12v 1uo941243c Relay repairable?

                    check inside the ecu
                    just in case a cap has leaked - very common in Honda OBD1 era stuff

                    Comment

                    • sam_sam_sam
                      Badcaps Legend
                      • Jul 2011
                      • 6070
                      • USA

                      #70
                      Re: 12v 1uo941243c Relay repairable?

                      Here is how I troubleshoot a short circuit with out a wiring diagram but this takes a long time to do

                      You have to gain access to the back of the fuse box and trace down the circuit that has the issue and start taking of the tape off until you get the first connection point and keep going down the wire path until you find out where or what is causing the short

                      One option you have to getting a wiring diagram for the car in question is go to the dealership and ask them if they will print out the section that you need I have done this myself in the past and have gotten good results from doing this now you might have to pay a fee for them to do this for you

                      What amperage is the fuse in question

                      STJ point is also something to look at as well

                      “ check inside the ecu
                      just in case a cap has leaked - very common in Honda OBD1 era stuff ”
                      Last edited by sam_sam_sam; 09-27-2022, 02:37 PM.

                      Comment

                      • petehall347
                        Badcaps Legend
                        • Jan 2015
                        • 4447
                        • United Kingdom

                        #71
                        Re: 12v 1uo941243c Relay repairable?

                        which fuse is blowing ? what did you do just as the fuse blew ?

                        Comment

                        • petehall347
                          Badcaps Legend
                          • Jan 2015
                          • 4447
                          • United Kingdom

                          #72
                          Re: 12v 1uo941243c Relay repairable?

                          there is a workshop service manual for the electrics online .. you will maybe need to make your own breakout box .
                          what i do is find the resistance figures for the sensor and remove and inspect the suspect sensor for damage and check resistance .
                          Last edited by petehall347; 09-27-2022, 03:24 PM.

                          Comment

                          • bohaboha
                            Badcaps Legend
                            • Nov 2012
                            • 1017
                            • sweden

                            #73
                            Re: 12v 1uo941243c Relay repairable?

                            Originally posted by petehall347
                            which fuse is blowing ? what did you do just as the fuse blew ?
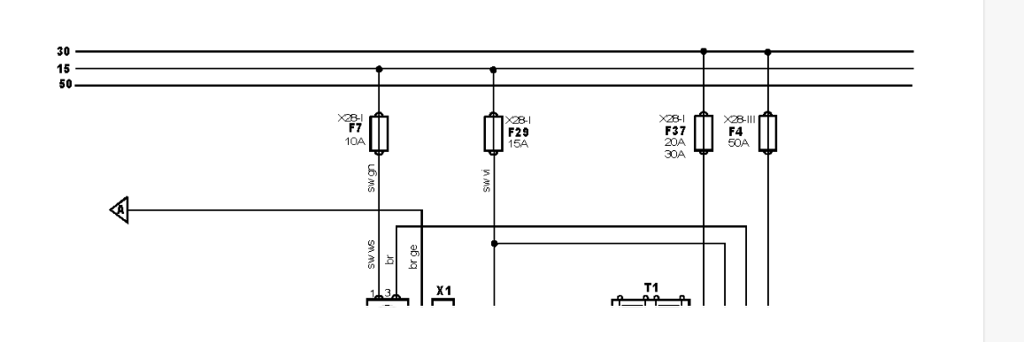
                            fuse that destroys all the time it is no: 29 on the fuse plate and I do not know to which relay it belongs the schematic on post 47 that you posted differs a little from my plate.

                            Comment

                            • bohaboha
                              Badcaps Legend
                              • Nov 2012
                              • 1017
                              • sweden

                              #74
                              Re: 12v 1uo941243c Relay repairable?

                              Originally posted by petehall347
                              there is a workshop service manual for the electrics online .. you will maybe need to make your own breakout box .
                              what i do is find the resistance figures for the sensor and remove and inspect the suspect sensor for damage and check resistance .
                              do you have any specific link to this workshop service manual? i searched for autodata but they are very expensive even though they have one..very cheap first month. what do you mean by making your own breakout box. the fuse that is no:29 on the fuse box has has to do with petrol engine, engine electronic and ignition according to the manual

                              Comment

                              • petehall347
                                Badcaps Legend
                                • Jan 2015
                                • 4447
                                • United Kingdom

                                #75
                                Re: 12v 1uo941243c Relay repairable?

                                f29 powers A52 Ignition amplifier. unplug it to test if short gone .
                                its right there on the diagram ,
                                that manual is on google ..its a skoda factory one

                                https://letmegooglethat.com/?q=skoda...cal+pdf+manual
                                Last edited by petehall347; 09-27-2022, 05:12 PM.

                                Comment

                                • bohaboha
                                  Badcaps Legend
                                  • Nov 2012
                                  • 1017
                                  • sweden

                                  #76
                                  Re: 12v 1uo941243c Relay repairable?

                                  Originally posted by petehall347
                                  f29 powers A52 Ignition amplifier. unplug it to test if short gone .
                                  its right there on the diagram ,
                                  that manual is on google ..its a skoda factory one

                                  https://letmegooglethat.com/?q=skoda...cal+pdf+manual
                                  Hi I find no F29 or A52 on the Diagram but you said "f29 powers A52 Ignition amplifier. Pull out the plug to test if there is a short circuit.
                                  It is right there on the diagram, can you point to what you are saying please

                                  Comment

                                  • petehall347
                                    Badcaps Legend
                                    • Jan 2015
                                    • 4447
                                    • United Kingdom

                                    #77
                                    Re: 12v 1uo941243c Relay repairable?

                                    everything is marked on the wiring diagram . there is also a list of everything you can search the pdf .
                                    Attached Files

                                    Comment

                                    • bohaboha
                                      Badcaps Legend
                                      • Nov 2012
                                      • 1017
                                      • sweden

                                      #78
                                      Re: 12v 1uo941243c Relay repairable?

                                      Originally posted by petehall347
                                      everything is marked on the wiring diagram . there is also a list of everything you can search the pdf .
                                      Thanks these were not with the others in your last post.I'm trying to put them together so I can understand what it looks like.
                                      Sorry now i see they are here

                                      Comment

                                      • bohaboha
                                        Badcaps Legend
                                        • Nov 2012
                                        • 1017
                                        • sweden

                                        #79
                                        Re: 12v 1uo941243c Relay repairable?

                                        Originally posted by petehall347
                                        everything is marked on the wiring diagram . there is also a list of everything you can search the pdf .
                                        Hi again I was wondering if you or maybe someone else here in the forum who knows how to test a 6pins,7pins,9pins and even twin relay. Have searched everywhere only find how does an 8 pins different relay work or maybe refer to something that can help. some pictures to understand
                                        Attached Files

                                        Comment

                                        • redwire
                                          Badcaps Legend
                                          • Dec 2010
                                          • 3912
                                          • Canada

                                          #80
                                          Re: 12v 1uo941243c Relay repairable?

                                          First you would troubleshoot and fix the blowing fuses problem, why are you now suspecting the relays? Look for the short circuits instead of wasting time here.
                                          Attached Files

                                          Comment

                                          Related Topics

                                          Collapse

                                          • Dvsr
                                            On M-Audio AV40 active studio speaker's two zener diodes get really hot.
                                            by Dvsr
                                            Hi. I need help from wiser guys. I am amateur in electronics and can't figure this out by myself.
                                            I bought faulty speakers, M-Audio AV40's. Other speaker has all the electronics in it and the other speaker is just passive one powered by the other speaker's amp. Original problem with the speakers was loud buzzing. I figured out that there is something wrong with the capacitors. I went ahead and replaced every electrolytic capacitor on the PCB. The caps are good quality and have the same values as the original ones.
                                            After replacing the caps I started testing out the speaker. It seemed...
                                            09-10-2025, 10:20 AM
                                          • caspian
                                            What Zener Diodes on a Linear Power Supply
                                            by caspian
                                            Dear members,

                                            I have a linear variable power supply with unknown brand name that I used for voltage injection.
                                            Then it failed. I discovered that its transistors (Q1 and Q2) are shorted.
                                            In addition, I discovered that its zener diodes are defective.
                                            I can replace the burned transistors.
                                            But I do not know the model of the zener diodes. the model number is not marked on the zener diodes.
                                            Therefore, I cannot replace the zener diodes.
                                            I do not want to test the zener diodes in a test circuit to discover their model or value.
                                            no schematics are available...
                                            05-26-2025, 12:38 PM
                                          • valvashon
                                            Repair Success! Middle Atlantic UPS2200R-IP
                                            by valvashon
                                            Yesterday I successfully repaired a Middle Atlantic UPS2200R-IP that had inadvertently been used as a surge suppressor at our transmitter site. It has already been replaced with an updated one but it's coming home with me now instead of being e-cycled. To be specific, this is the MA model that has the blue backlit display and has been discontinued, although this design may have been used in many UPS units including the smaller Middle Atlantic ones in this series.



                                            Here's what happened: We experienced a brownout/surge at the site, which damaged the UPS and took our broadcasting...
                                            02-06-2024, 12:54 PM
                                          • sam_sam_sam
                                            Mitsubishi CNC switching power supply board dead / relay board bad diode failure
                                            by sam_sam_sam
                                            I was working on this CNC machine today found no keyboard functioning no control relay powering on
                                            The screen powered on and was giving an operation error but the manual was not very clear about what the error exactly was but with a little bit of troubleshooting and finding out that the control relays not powering on and no keyboard functions we narrowed down to this one switching power supply which of course does not have any indicator LED light they are on the keyboard interface/relay controller board

                                            Found shorted diodes on main controller relays there are 3 of them that...
                                            01-07-2023, 05:43 PM
                                          • CoinCoin88
                                            Garage door RX unit (Cardin S38C) does not short relay to send opening signal
                                            by CoinCoin88
                                            Hello everyone,

                                            I'm turning to the Badcaps community to help me troubleshoot the radio Rx card from my (old) garage door opener. While I could just ditch that card and replace the whole system, I first would like to understand "why" it suddenly stopped working, because that's just how I am wired...!

                                            Some basics: the receiver works on a 30.875 Mhz frequency. Yes, I'm aware this is not in use anymore in a looot of places. It does not use any rolling code, it's just a regular dip-switch code that you have to set up on both the receiver and transmitter. The receiver...
                                            09-15-2025, 03:36 AM
                                          • Loading...
                                          • No more items.
                                          Working...