Sony KDL-55EX620, no stand-by volts from one bad resistor?

Collapse
X
 
  • Time
  • Show
Clear All
new posts
  • budm
    Badcaps Legend
    • Feb 2010
    • 40746
    • USA

    #41
    Re: Sony KDL-55EX620, no stand-by volts from one bad resistor?

    "On page 35 of the service manual I traced the AC_OFF_DET circuit back to that crispy looking transistor Q6405"
    You need to look at the schematic again, that is not what is shown in the service manual I provided. We need to get correct info first.
    You need to trace the circuit from the AC_off_det pin cn6101 pin 7 back toward the front end.
    Last edited by budm; 12-05-2018, 09:31 PM.
    Never stop learning
    Basic LCD TV and Monitor troubleshooting guides.
    http://www.badcaps.net/forum/showthr...956#post305956

    Voltage Regulator (LDO) testing:
    http://www.badcaps.net/forum/showthr...999#post300999

    Inverter testing using old CFL:
    http://www.badcaps.net/forum/showthr...er+testing+cfl

    Tear down pictures : Hit the ">" Show Albums and stories" on the left side
    http://s807.photobucket.com/user/budm/library/

    TV Factory reset codes listing:
    http://www.badcaps.net/forum/showthread.php?t=24809

    Comment

    • budm
      Badcaps Legend
      • Feb 2010
      • 40746
      • USA

      #42
      Re: Sony KDL-55EX620, no stand-by volts from one bad resistor?

      Your power supply board in your 55" is G6 board, look at page 35 for G6 schematic which is for your TV.
      G5 power supply board is not used in your TV, G5 uses Q6405 in the AC_OFF_DFET circuit.
      Look at you board, the service manual and then match them up to what you are troubleshooting.
      Service manual page 7 shows what boards are used in your TV!
      Never stop learning
      Basic LCD TV and Monitor troubleshooting guides.
      http://www.badcaps.net/forum/showthr...956#post305956

      Voltage Regulator (LDO) testing:
      http://www.badcaps.net/forum/showthr...999#post300999

      Inverter testing using old CFL:
      http://www.badcaps.net/forum/showthr...er+testing+cfl

      Tear down pictures : Hit the ">" Show Albums and stories" on the left side
      http://s807.photobucket.com/user/budm/library/

      TV Factory reset codes listing:
      http://www.badcaps.net/forum/showthread.php?t=24809

      Comment

      • DXseekerMO
        Badcaps Legend
        • Feb 2018
        • 1119
        • US

        #43
        Re: Sony KDL-55EX620, no stand-by volts from one bad resistor?

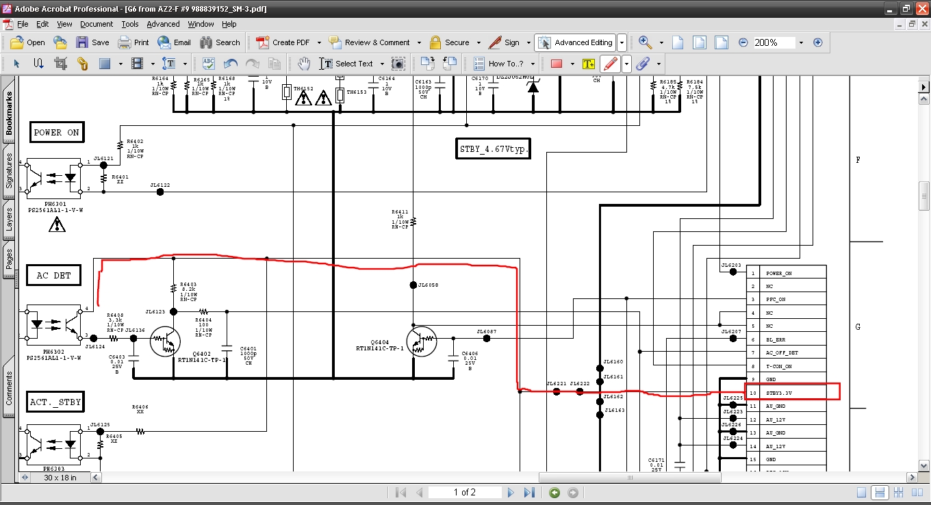
        I see that, it traces to pin 3 of PH6302 which has zero volts. Pin 4 has 3.49V. If I am reading the diagram right it looks like pin 3 is the supply line for Q6402 which looks like no volts at pin 3 = transistor Q6402 doesn't turn on?

        Also pins 1 and 2 of PH6302 have 18V present, hot ground used

        Maybe I should ask how the electricity flows through an opto. I'm guessing there's an electrically conductive photocell in there that when the LED's inside light up it results in electrical flow through pins 3 and 4?
        They call me......."threadkiller"

        Comment

        • DXseekerMO
          Badcaps Legend
          • Feb 2018
          • 1119
          • US

          #44
          Re: Sony KDL-55EX620, no stand-by volts from one bad resistor?

          Originally posted by budm
          Your power supply board in your 55" is G6 board, look at page 35 for G6 schematic which is for your TV.
          G5 power supply board is not used in your TV, G5 uses Q6405 in the AC_OFF_DFET circuit.
          Look at you board, the service manual and then match them up to what you are troubleshooting.
          Service manual page 7 shows what boards are used in your TV!
          I almost made that mistake, I am looking at the G6 board schemo on page 35

          Ahhhh, crap.....I was on the wrong page, but the circuit looks identical, save for nomenclature

          Now on page 35
          Last edited by DXseekerMO; 12-05-2018, 09:48 PM.
          They call me......."threadkiller"

          Comment

          • budm
            Badcaps Legend
            • Feb 2010
            • 40746
            • USA

            #45
            Re: Sony KDL-55EX620, no stand-by volts from one bad resistor?

            G6 board.
            Please pay more attention, I spend lots of time providing you with service info. Schematics, Training manual, etc.
            We are up to post 46 now.
            Attached Files

            if you find these attachements useful please consider making a small donation to the site

            Last edited by budm; 12-05-2018, 09:47 PM.
            Never stop learning
            Basic LCD TV and Monitor troubleshooting guides.
            http://www.badcaps.net/forum/showthr...956#post305956

            Voltage Regulator (LDO) testing:
            http://www.badcaps.net/forum/showthr...999#post300999

            Inverter testing using old CFL:
            http://www.badcaps.net/forum/showthr...er+testing+cfl

            Tear down pictures : Hit the ">" Show Albums and stories" on the left side
            http://s807.photobucket.com/user/budm/library/

            TV Factory reset codes listing:
            http://www.badcaps.net/forum/showthread.php?t=24809

            Comment

            • DXseekerMO
              Badcaps Legend
              • Feb 2018
              • 1119
              • US

              #46
              Re: Sony KDL-55EX620, no stand-by volts from one bad resistor?

              Originally posted by budm
              G6 board.
              Please pay more attention, I spend lots of time providing you with service info. Schematics, Training manual, etc.
              We are up to post 46 now.
              Yes, I do tend to get the cart before the horse occasionally. but I do try to accept my mistakes humbly
              Last edited by DXseekerMO; 12-05-2018, 09:51 PM.
              They call me......."threadkiller"

              Comment

              • DXseekerMO
                Badcaps Legend
                • Feb 2018
                • 1119
                • US

                #47
                Re: Sony KDL-55EX620, no stand-by volts from one bad resistor?

                If I am reading the diagram right, if voltage is present at pins 1 and 2 the LED inside the opto should illuminate and close the circuit on pins 3 and 4?

                Since 3.49V is already at pin 3 and this is the specified voltage for that circuit, shouldn't jumping pins 3 and 4 activate the AC_OFF_DET circuit if the opto is bad?
                They call me......."threadkiller"

                Comment

                • budm
                  Badcaps Legend
                  • Feb 2010
                  • 40746
                  • USA

                  #48
                  Re: Sony KDL-55EX620, no stand-by volts from one bad resistor?

                  This is where understanding how Transistor and Opto work come into play.
                  So Opto PH6032 pin 3 (Emitter of photo transistor) is at 3.49V, and you also have about the same Voltage at pin 4 (Collector), so what do you think what is going on with that Opto, is the output ON or is it OFF?

                  https://en.wikipedia.org/wiki/Opto-isolator
                  Attached Files

                  if you find these attachements useful please consider making a small donation to the site

                  Last edited by budm; 12-05-2018, 10:42 PM.
                  Never stop learning
                  Basic LCD TV and Monitor troubleshooting guides.
                  http://www.badcaps.net/forum/showthr...956#post305956

                  Voltage Regulator (LDO) testing:
                  http://www.badcaps.net/forum/showthr...999#post300999

                  Inverter testing using old CFL:
                  http://www.badcaps.net/forum/showthr...er+testing+cfl

                  Tear down pictures : Hit the ">" Show Albums and stories" on the left side
                  http://s807.photobucket.com/user/budm/library/

                  TV Factory reset codes listing:
                  http://www.badcaps.net/forum/showthread.php?t=24809

                  Comment

                  • DXseekerMO
                    Badcaps Legend
                    • Feb 2018
                    • 1119
                    • US

                    #49
                    Re: Sony KDL-55EX620, no stand-by volts from one bad resistor?

                    I'll look at the link
                    Last edited by DXseekerMO; 12-05-2018, 10:39 PM.
                    They call me......."threadkiller"

                    Comment

                    • DXseekerMO
                      Badcaps Legend
                      • Feb 2018
                      • 1119
                      • US

                      #50
                      Re: Sony KDL-55EX620, no stand-by volts from one bad resistor?

                      If I am reading that right pins 3 and 4 should have continuity?

                      Between pins 1 and 2 are a diode with arrows pointing at 3 and 4. This has to be light driving pins 3 and 4 correct?
                      Last edited by DXseekerMO; 12-05-2018, 10:43 PM.
                      They call me......."threadkiller"

                      Comment

                      • budm
                        Badcaps Legend
                        • Feb 2010
                        • 40746
                        • USA

                        #51
                        Re: Sony KDL-55EX620, no stand-by volts from one bad resistor?

                        So is the output of the Opto on or off?
                        Never stop learning
                        Basic LCD TV and Monitor troubleshooting guides.
                        http://www.badcaps.net/forum/showthr...956#post305956

                        Voltage Regulator (LDO) testing:
                        http://www.badcaps.net/forum/showthr...999#post300999

                        Inverter testing using old CFL:
                        http://www.badcaps.net/forum/showthr...er+testing+cfl

                        Tear down pictures : Hit the ">" Show Albums and stories" on the left side
                        http://s807.photobucket.com/user/budm/library/

                        TV Factory reset codes listing:
                        http://www.badcaps.net/forum/showthread.php?t=24809

                        Comment

                        • DXseekerMO
                          Badcaps Legend
                          • Feb 2018
                          • 1119
                          • US

                          #52
                          Re: Sony KDL-55EX620, no stand-by volts from one bad resistor?

                          The LED should be on and voltage should be present at pins 3 and 4?
                          Last edited by DXseekerMO; 12-05-2018, 10:50 PM.
                          They call me......."threadkiller"

                          Comment

                          • budm
                            Badcaps Legend
                            • Feb 2010
                            • 40746
                            • USA

                            #53
                            Re: Sony KDL-55EX620, no stand-by volts from one bad resistor?

                            Good, so that means if you jump pin 3 and 4 will not make a different, correct? since it is already on.
                            So the output of Opto is on, that means it is providing the bias current to turn on that Q6402 which will cause the Collector Voltage to be low, and that Collector pin is the one that provides the AC_OFF_DET signal to the main board so now you see why you are getting low Voltage on the AC_OFF_DET pin on the connector. Opto needs to be off so Q6402 will then be off then the Collector Voltage will then go high.
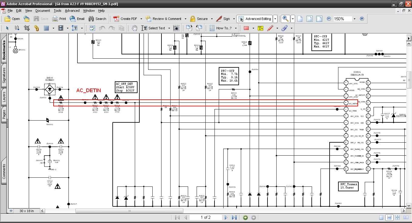
                            If you measure the Voltage on the hot side of the Opto between pin 1 and 2, it should show about 2V for the internal LED, that will mean the IC6501 (pin 26) is driving the LED of the OPTO, in normal condition, the LED should not be driven on right now, so that IC may be detecting and false AC condition, if that is the case then you need to dig deeper to see why. You need to get the spec sheet of that IC6501 (CXA3811M-T6) to read and understand how it works.
                            Pin 4 (AC_DETIN) of the IC looks to be the one that monitor the incoming AC via a bunch of resistors connected in series, it can be that those resistor have drifted up in value and cause fault condition.
                            Update: I found the spec sheet of CXA3811.
                            Attached Files

                            if you find these attachements useful please consider making a small donation to the site

                            Last edited by budm; 12-05-2018, 11:52 PM.
                            Never stop learning
                            Basic LCD TV and Monitor troubleshooting guides.
                            http://www.badcaps.net/forum/showthr...956#post305956

                            Voltage Regulator (LDO) testing:
                            http://www.badcaps.net/forum/showthr...999#post300999

                            Inverter testing using old CFL:
                            http://www.badcaps.net/forum/showthr...er+testing+cfl

                            Tear down pictures : Hit the ">" Show Albums and stories" on the left side
                            http://s807.photobucket.com/user/budm/library/

                            TV Factory reset codes listing:
                            http://www.badcaps.net/forum/showthread.php?t=24809

                            Comment

                            • DXseekerMO
                              Badcaps Legend
                              • Feb 2018
                              • 1119
                              • US

                              #54
                              Re: Sony KDL-55EX620, no stand-by volts from one bad resistor?

                              Now I think I know where we are missing each other....there is no voltage present at pin 4, it reads zero volts, but there should be voltage at pin 4 right?

                              There is voltage at pin 3, 3.44V
                              They call me......."threadkiller"

                              Comment

                              • DXseekerMO
                                Badcaps Legend
                                • Feb 2018
                                • 1119
                                • US

                                #55
                                Re: Sony KDL-55EX620, no stand-by volts from one bad resistor?

                                Sorry budm, I was measuring pins 1 and 2 to chassis ground, not each other. There is no voltage present at pins 1 and 2 when measured across each other.

                                Pins 3 and 4 should not have continuity, right?

                                In other words, the supply voltage for pins 1 and 2 are what is missing?

                                Sorry this is dragging out like this.
                                Last edited by DXseekerMO; 12-05-2018, 11:11 PM.
                                They call me......."threadkiller"

                                Comment

                                • budm
                                  Badcaps Legend
                                  • Feb 2010
                                  • 40746
                                  • USA

                                  #56
                                  Re: Sony KDL-55EX620, no stand-by volts from one bad resistor?

                                  Originally posted by DXseekerMO
                                  Now I think I know where we are missing each other....there is no voltage present at pin 4, it reads zero volts, but there should be voltage at pin 4 right?

                                  There is voltage at pin 3, 3.44V
                                  Look at the schematic again, pin 4 of the opto 6302 is connected to stby3.3V, so no way you will not have 3.3V at pin 4 of the Opto unless you have broken trace between pin 4 and the STBY 3.3V pin of the connector cn6101 pin 10.
                                  Use your logic and common sense.
                                  You need to pay attention. Ask yourself how you can have 0V at pin 4 of the opto.
                                  Attached Files

                                  if you find these attachements useful please consider making a small donation to the site

                                  Last edited by budm; 12-05-2018, 11:38 PM.
                                  Never stop learning
                                  Basic LCD TV and Monitor troubleshooting guides.
                                  http://www.badcaps.net/forum/showthr...956#post305956

                                  Voltage Regulator (LDO) testing:
                                  http://www.badcaps.net/forum/showthr...999#post300999

                                  Inverter testing using old CFL:
                                  http://www.badcaps.net/forum/showthr...er+testing+cfl

                                  Tear down pictures : Hit the ">" Show Albums and stories" on the left side
                                  http://s807.photobucket.com/user/budm/library/

                                  TV Factory reset codes listing:
                                  http://www.badcaps.net/forum/showthread.php?t=24809

                                  Comment

                                  • DXseekerMO
                                    Badcaps Legend
                                    • Feb 2018
                                    • 1119
                                    • US

                                    #57
                                    Re: Sony KDL-55EX620, no stand-by volts from one bad resistor?

                                    From D6500 to pin 4 of IC6501 there is 1.320 megaohms of resistance. I added up the resistors in circuit and this is the figure I come up with. When I test at jumper wire JW6046 (part of the circuit) I get about 2.16V, hot grounded meter.

                                    It looks like pin 4 AC_DETIN is receiving at least some voltage. This leads me to believe IC6501 may not be processing that signal?

                                    I will pull the datasheet and look
                                    They call me......."threadkiller"

                                    Comment

                                    • DXseekerMO
                                      Badcaps Legend
                                      • Feb 2018
                                      • 1119
                                      • US

                                      #58
                                      Re: Sony KDL-55EX620, no stand-by volts from one bad resistor?

                                      Based on what I see AC_DET_OUT volts are absent.

                                      The AC_DETIN is about the same voltage as what drives the LED in the opto.

                                      This leads me to conclude the AC_DET circuit of IC6501 has failed?
                                      They call me......."threadkiller"

                                      Comment

                                      • DXseekerMO
                                        Badcaps Legend
                                        • Feb 2018
                                        • 1119
                                        • US

                                        #59
                                        Re: Sony KDL-55EX620, no stand-by volts from one bad resistor?

                                        So I am frustrating myself and I have made a mistake. I am getting things transposed.

                                        What you all don't know is about 20 years ago I was seriously injured by a 6500 pound truck on a supposed 10,000 pound rated lift which folded under the weight and came down on top of me. Turns out the cheap lift was over-rated. Of the many injuries I had, I also had a head injury and sometimes this causes me to get things backwards.

                                        I died on that shop floor. I wouldn't be here if it wasn't for the service manager knowing what to do.

                                        Sometimes I feel like "Cousin Eddie" on National Lampoon's Christmas Vacation. Rev up the microwave, piss myself and forget who I am for a while.

                                        I don't mean to do it. It happens on automatic pilot and I'm none the wiser....least for a bit anyhow.

                                        Pin 4 of PH6302 has 3.45V
                                        Pin 3 has zero volts.
                                        Last edited by DXseekerMO; 12-06-2018, 12:28 AM.
                                        They call me......."threadkiller"

                                        Comment

                                        • DXseekerMO
                                          Badcaps Legend
                                          • Feb 2018
                                          • 1119
                                          • US

                                          #60
                                          Re: Sony KDL-55EX620, no stand-by volts from one bad resistor?

                                          I'd like to at least attempt to share my understanding of how the AC_DET circuit functions with the hope I've learned something.

                                          AC power is delivered to a rectifier diode turning 120V AC in to about 165V DC. This DC power is passed through another diode and multiple resistors, regulating it down to about 2 volts and delivering it to pin 4 of IC6501, which if present will pass through this IC and out of pin 26, and arrive at PH6302, illuminate the diode and allow STBY_3.3 voltage through to Q6402 and ultimately to the AC_OFF_DET pin on CN6101, then on to the processor on the main board. With this voltage present the processor allows POWER_ON voltage of 3.3V to be sent to the PSU. By grounding this voltage the processor recognizes that as a power on request and the TV is turned on.

                                          I'm very ready for someone to confirm this or maybe tell me where I missed the mark.

                                          The diagram and conditions present lead me to believe IC6501 is bad. Furthermore if I am reading the diagram right I should be able to connect pins 4 and 26 on this IC which should result in AC_OFF_DET voltage at CN6101?
                                          Last edited by DXseekerMO; 12-06-2018, 01:16 AM.
                                          They call me......."threadkiller"

                                          Comment

                                          Related Topics

                                          Collapse

                                          • brithepi2k
                                            Sony KD-65XE8596 no standby light
                                            by brithepi2k
                                            Hi,

                                            I’ve got a Sony KD-65XE8596 here that has no standby light coming on. I’ve tested the power board with the test meter, the TV needs 3.4 for the standby but only getting 2.4. Anything that I can change/check on the board to get it working? Pictures of the board are included.

                                            cheers...
                                            09-06-2025, 02:22 PM
                                          • corrize
                                            Replacing resistor fuse in Sony DV charger
                                            by corrize
                                            Hello, I have 2 old chargers for Sony DV, and I found the same resistor fuse dead. Fuse is a crossing component : 0,47 Ohms (0,125W deduced because the lenght is 3mm). But I can’t find the same for buy.
                                            So, I want to replace by another like 0 Ohms, 1 Ohms 0,125W,

                                            It is the same please ? I guess it’s the same, the only change should be the time to burn ? Thanks...
                                            06-30-2025, 06:59 PM
                                          • x_orange90_x
                                            Sony Bravia KD-50X690E blown resistor
                                            by x_orange90_x
                                            I just picked up this tv yesterday and the previous owner said while watching tv he heard a loud a pop and then the screen went dark. I removed the back cover and found the source rather quickly; resistor R8601. A chunk of the ceramic had blown off exposing the inner wire. Due to the damage I cannot make out the colors of a couple bands. I likewise cannot find a datasheet for the power supply. I tried pulling up pictures of the same board online but the resistors have different colored bands which I half expected as I've had this happen before.

                                            The power supply is 715G8413-P01-001-0H2S...
                                            07-16-2024, 06:53 AM
                                          • rabbituk
                                            Sony HCD BX7700dbi CMT flashing standby
                                            by rabbituk
                                            I have got a Sony HCD-BX7700dbi that isn't worth a lot but I'm keen to learn how to repair and would appreciate some help with my train of thought. The protection circuit is kicking in and the standby light is blinking. It goes into protection mode within a second of powering it on.

                                            So far the relay on the power board that enables the main transformer clicks on and then off when powering on the unit. Looking at the schematics, the permanently enabled power rail called 'unreg sub' provides about 13.5VDC. Where the power comes into the main board on connector CN303, there is a diode...
                                            02-11-2025, 05:05 PM
                                          • jinu_j
                                            Dell 2209WA - power supply - Fusible Resistor replacement
                                            by jinu_j
                                            Hi

                                            I am trying to repair an ancient Dell 2209WA Monitor which suddenly shut off with a pop sound. On investigation found that one of the fusible resistors had blown. Further investigation identified multiple components as faulty because of which the fusible resistor blew. Please refer the attached circuit diagram showing the components that were found to be damaged.

                                            1. FR950 - blown fusible resistor - 0.2 Ohm 1W
                                            2. Q950 - shorted Q950 MOSFET - 650V 10A N Channel Mosfet
                                            3. R835 - Blown Resistor - 20KOhm SMD resistor
                                            4. D930 - Shorted Schottkey Diode...
                                            05-03-2025, 10:51 PM
                                          • Loading...
                                          • No more items.
                                          Working...