LG 32lh20r-ta no picture, backlight only

Collapse
X
 
  • Time
  • Show
Clear All
new posts
  • kumag
    Member
    • Dec 2013
    • 33
    • philippines

    #1

    LG 32lh20r-ta no picture, backlight only

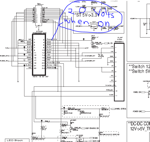
    Hello fellow tech'n.. i have checked all printed voltages on power board and its ok except the power_on voltage that reads 2.0 when turned tv on. The 12v supply to panel drops to 7.2v but when lvds ribbon detached it resumes to 12v. beforehand...I saw some image retention and color bars in horizontal order on and off. The tv turns on fine but no image no osd just a clear screen with backlight on..
    Last edited by kumag; 08-19-2015, 08:57 PM.
  • kumag
    Member
    • Dec 2013
    • 33
    • philippines

    #2
    Re: LG 32lh20r-ta no picture, backlight only

    some attachments..
    Attached Files

    if you find these attachements useful please consider making a small donation to the site

    Comment

    • niblettr
      Senior Member
      • Jun 2015
      • 98
      • UK

      #3
      Re: LG 32lh20r-ta no picture, backlight only

      On the first diagram that you drew on, what do you measure on the 5V supply to the transistor? I'm guessing that pin 2 (labelled Power On) is a connector and not an IC.

      If you measure about 2v on the 5v line then you need to trace what is dragging that 5v line down. Look at the 5v supply regulator/caps itself. Look at the 3v3 regulator hagging off the 5v line. If you isolate the input of the 3v3 regulator and the 5v line measure normal again, obviously 3v3 side has a fault.

      If you actually measure 5v on the 5v line, then you need to trace where pin 2 on the connector (im guessing its a connector) goes to and post up your findings.
      Last edited by niblettr; 08-20-2015, 04:18 AM.

      Comment

      • niblettr
        Senior Member
        • Jun 2015
        • 98
        • UK

        #4
        Re: LG 32lh20r-ta no picture, backlight only

        Also, what happens to the 5V when you detach the lvds ribbon?

        Comment

        • kumag
          Member
          • Dec 2013
          • 33
          • philippines

          #5
          Re: LG 32lh20r-ta no picture, backlight only

          thanks for your response sir.. 3.3 and 5v is ok. only the 12v from Q1003 vary its output.. and also the power_on pin..
          Last edited by kumag; 08-20-2015, 05:01 AM.

          Comment

          • niblettr
            Senior Member
            • Jun 2015
            • 98
            • UK

            #6
            Re: LG 32lh20r-ta no picture, backlight only

            What does the 12v line measure at the top of the inductor L1006 (labelled 12v small)
            Also, in your diagram it says "drops to 7.2v" Do mean to say you measured 12v and then something turns on then the voltage drops?
            Last edited by niblettr; 08-20-2015, 05:19 AM.

            Comment

            • niblettr
              Senior Member
              • Jun 2015
              • 98
              • UK

              #7
              Re: LG 32lh20r-ta no picture, backlight only

              Where does pin2 (power on) go to? Follow the cable..

              more pictures please

              Comment

              • kumag
                Member
                • Dec 2013
                • 33
                • philippines

                #8
                Re: LG 32lh20r-ta no picture, backlight only

                its 12v on top of L1006 up to s1 of q1003..when i turn on the tv the drain side voltage drops to 7v2.. but when lvds ribbon detached it resumes to 12v

                Comment

                • niblettr
                  Senior Member
                  • Jun 2015
                  • 98
                  • UK

                  #9
                  Re: LG 32lh20r-ta no picture, backlight only

                  On that diagram on the far right, what does it read just before +12V LCD?

                  Comment

                  • niblettr
                    Senior Member
                    • Jun 2015
                    • 98
                    • UK

                    #10
                    Re: LG 32lh20r-ta no picture, backlight only

                    what does the Panel_ON net measure when LVDS cable is left plugged in then pulled out?

                    Comment

                    • kumag
                      Member
                      • Dec 2013
                      • 33
                      • philippines

                      #11
                      Re: LG 32lh20r-ta no picture, backlight only

                      Originally posted by niblettr
                      On that diagram on the far right, what does it read just before +12V LCD?
                      thats the point that is unstable..

                      Comment

                      • kumag
                        Member
                        • Dec 2013
                        • 33
                        • philippines

                        #12
                        Re: LG 32lh20r-ta no picture, backlight only

                        Originally posted by niblettr
                        what does the Panel_ON net measure when LVDS cable is left plugged in then pulled out?
                        i think im going to do that later sir.. my country is having bad weather today and my internet is badly slow... many thanks for now for helping me sir nibbletr..

                        Comment

                        • niblettr
                          Senior Member
                          • Jun 2015
                          • 98
                          • UK

                          #13
                          Re: LG 32lh20r-ta no picture, backlight only

                          Originally posted by kumag
                          thats the point that is unstable..
                          No, I mean the writing on the diagram. (quality of photo is bad)

                          Comment

                          • kumag
                            Member
                            • Dec 2013
                            • 33
                            • philippines

                            #14
                            Re: LG 32lh20r-ta no picture, backlight only

                            some pics and service manual..
                            Attached Files

                            if you find these attachements useful please consider making a small donation to the site

                            Comment

                            • kumag
                              Member
                              • Dec 2013
                              • 33
                              • philippines

                              #15
                              Re: LG 32lh20r-ta no picture, backlight only

                              Originally posted by niblettr
                              On that diagram on the far right, what does it read just before +12V LCD?
                              it's +5v_

                              Comment

                              • kumag
                                Member
                                • Dec 2013
                                • 33
                                • philippines

                                #16
                                Re: LG 32lh20r-ta no picture, backlight only

                                hello.. i would like to ask what is the right actual power_on voltage to expect on this model.. because i read it at 2v0.. i am very confused.. Another thing i noticed was when i get closer to its psu, there was a not so loud ballast-like-sound.. seems it operates at low frequency.. there is a built-in tact switch on mainboard.. is it safe to push while the tv is on?

                                Comment

                                • kumag
                                  Member
                                  • Dec 2013
                                  • 33
                                  • philippines

                                  #17
                                  Re: LG 32lh20r-ta no picture, backlight only

                                  hello...
                                  Attached Files

                                  if you find these attachements useful please consider making a small donation to the site

                                  Comment

                                  Related Topics

                                  Collapse

                                  • triplefour
                                    UN65TU700DF picture and sound but no backlight. BL tests ok but repl. PSU didnt fix!
                                    by triplefour
                                    this tv is throwing me for a loop. do samsung tvs no longer have the backlight self test feature built into the power supply?
                                    i tested the backlight with my LED tester and it lights up both strips. one of them reads 100v and the other reads 63.7v.
                                    unplugged mainboard from power supply but left backlight plugged in, and then plugged psu wall power in. expected to see backlights light up but see nothing.
                                    according to how ive diagnosed in the past, this would almost always be a bad power supply. replacement power supply was cheap like 20$ from ebay. but still i get not even...
                                    09-13-2023, 10:43 PM
                                  • TR103
                                    Samsung TV model UE50TU: rebooting, backlight, sound, but no picture
                                    by TR103
                                    Hi, I have a Samsung UE50TU with:
                                    - sound and backlight, but no picture
                                    - when it arrived, it had a picture for a few seconds
                                    - it keeps rebooting
                                    - without ribbon cable between the two panel boards, it does not reboot but I have no picture
                                    - without cable between mainboard and lcd panel, it does not reboot (but obviously i have no picture)
                                    - when i try a tape fix, its keeps rebooting, unless I tape off pin 1 (the innermost pin). In that case it does not reboot but I have no picture.

                                    - without cable between mainboard and lcd panel and with a jumpered...
                                    01-22-2025, 04:12 PM
                                  • Mgiffune
                                    Samsung UN60EH6000F Black Screen, Backlight and Sound Good. Power Cycle Returns Picture
                                    by Mgiffune
                                    I have a 60 inch Samsung UN60EH6000F flatscreen TV. The screen went black a few months ago Sound is good, backlight is good, no menu. I replaced the TCon board with a used board purchased from Ebay. It worked fine for a 3-4 months, then the screen started ‘fading' back. Once again, sound is good, backlight is good, no menu. However, this time the picture looks fine for about 10-15 minutes, then fades back. If I power cycle the TV, the display reappears, for another 10-15 minutes, then fades black again. Repeatable ever time.

                                    I ordered a supposedly ‘new' Tcon board this time, and
                                    ...
                                    06-09-2024, 10:28 AM
                                  • Ierwin
                                    Samsung UE60KU6079 backlight okay mainboard responsive, no picture, no sound
                                    by Ierwin
                                    Hello everyone,
                                    Ive got a UE60KU6079 on the workbench that is giving me some headaches trying to troubleshoot.
                                    The previous owner stated that there had been white dots on the screen which from the description sounded like some lenses fell of the backlight LEDs.
                                    He had opened the TV from the back, trying to get to the backlight, supposedly gave up, reassebled everything and gave the TV to me.
                                    I expected the worst like ripped COF cables or a cracked panel but could not find anything like that yet.
                                    Anyway I still fully expect that there has been something seriously damaged...
                                    05-13-2025, 03:31 PM
                                  • groomit
                                    Philips 50PUS7363/12 Backlight but no picture
                                    by groomit
                                    Hi,
                                    I'm having trouble with above mentioned TV. Bought it defect.
                                    Picture was heavily compressed around the horizontal axis. Fiddeled and tried different things (mask clock lines, swap T-Con). But no difference.
                                    Then I identified a heating capacitor on the left hand Signal-PCB (?) below the display. Replaced it by hand soldering. Checked for shorts afterwards. But now the screen stays black.

                                    I can see backlight, but screen stays black.
                                    What I've tried:
                                    - Disconnect right side cable from T-Con -> same (backlight but no pic)
                                    - Disconnect left side...
                                    11-22-2024, 02:43 PM
                                  • Loading...
                                  • No more items.
                                  Working...