mitsubishi vs7004r - Power supply

Collapse
X
 
  • Time
  • Show
Clear All
new posts
  • kmoonen
    Senior Member
    • Dec 2011
    • 61

    #1

    mitsubishi vs7004r - Power supply

    Ok I know this is an old one, but it is for a large arcade machine, and such must be fixed

    I am looking for a schematic, or if anyone know what resistor goes on the board

    Power Supply Board

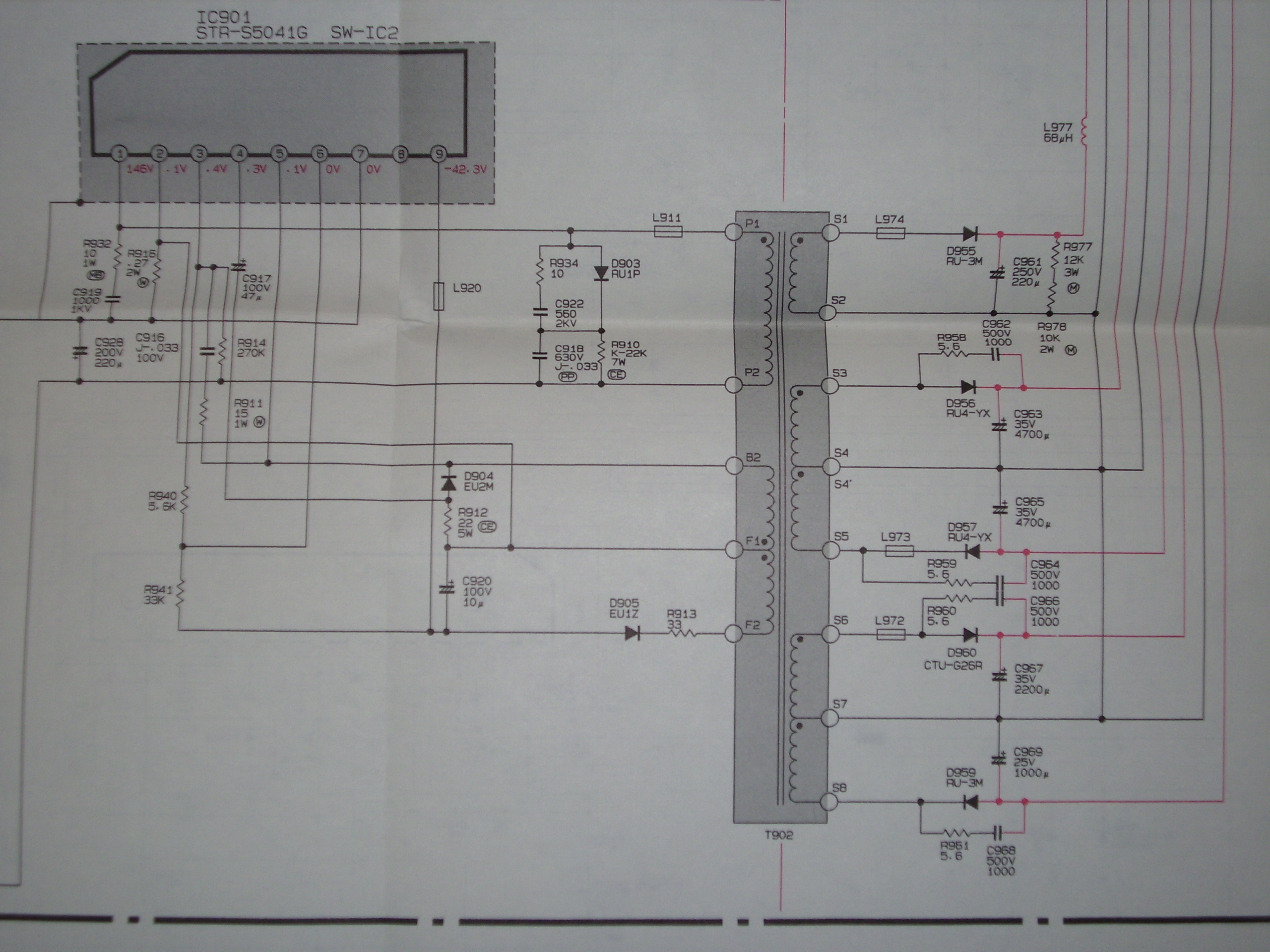
    Model: 935C31801 and it is R913 that I cannot read .

    any help is much appreciated

    Ken
  • Pentium4
    CapXon Be Gone
    • Sep 2011
    • 3741
    • USA

    #2
    Re: mitsubishi vs7004r - Power supply

    Can you post some pictures of it?

    Comment

    • kmoonen
      Senior Member
      • Dec 2011
      • 61

      #3
      Re: mitsubishi vs7004r - Power supply

      Here are the pics


      Attached Files

      if you find these attachements useful please consider making a small donation to the site

      Comment

      • kmoonen
        Senior Member
        • Dec 2011
        • 61

        #4
        Re: mitsubishi vs7004r - Power supply

        Looking for r913 and r934 values .

        Comment

        • ben7
          Capaholic
          • Jan 2011
          • 4059
          • USA

          #5
          Re: mitsubishi vs7004r - Power supply

          It might be best to get a schematic for this!
          Muh-soggy-knee

          Comment

          • RON_CET
            Badcaps Veteran
            • Jun 2012
            • 217
            • USA

            #6
            Re: mitsubishi vs7004r - Power supply

            pcb-power schematic shows R913 (33 ohm) & R934 (10 ohm) this service manual was printed in 1991 for this set,manual# VS-013 for VS-7004 (V11 chassis)
            Attached Files

            if you find these attachements useful please consider making a small donation to the site

            Last edited by RON_CET; 06-20-2013, 07:44 AM.
            Ron Driver,BSEE,CET,ISCET,NESDA

            Comment

            • ben7
              Capaholic
              • Jan 2011
              • 4059
              • USA

              #7
              Re: mitsubishi vs7004r - Power supply

              I'm thinking your IC901 could be burnt out too.

              Check diodes D903, D904, and D905 please! Also check C918.
              Muh-soggy-knee

              Comment

              Related Topics

              Collapse

              • Tynan Dill
                Vizio e601i-A3 - Has Sound and Display, But No Backlight - Bad Power Supply Board or Bad LED Bulbs ?
                by Tynan Dill
                I was given this TV from my great uncle. He said it just wouldn't turn on one day out of nowhere, replaced the TV, and gave it to me to possibly fix and use for myself.

                Upon bringing it home and plugging it up, it showed a standby light.

                I powered it on and without a flashlight, the display showed the "V" but the lighting is very dim, but visible.

                The screen seems to blackout and stay black, but with a flashlight I can see the display.

                With my Playstation 4 connected via HDMI, and running a game I can hear sound.

                Assuming...
                11-22-2024, 01:46 PM
              • sam_sam_sam
                Desoldering gun station modified to use a 18 volt @ 20 amp switching power supply
                by sam_sam_sam
                I have wanting to do this project for quite sometime now and I finally found a switching power supply that will work on this desoldering gun station ZD-915 that the original switching power supply took a shit and just was not worth trying to fix it because this switching power is not quite big enough to handle the heater element and the vacuum pump

                One note when I tested the switching power supply and the voltage control board I noticed that this desoldering gun heat up much faster than the original switching power supply which I was really surprised by to the point that I might buy...
                03-31-2024, 02:12 PM
              • sam_sam_sam
                Modification to a ZD-987 desoldering/soldering station using a external switching power supply
                by sam_sam_sam
                I have been working on this concept for quite some time now with limited success but recently I found a switching power supply that is setup for the voltage that this soldering station needs to operate at however it also needs part of the secondary circuit from the original switching power because you need several voltage rails

                I once tried to get a ZD-915 desoldering station to work on a 18 volt battery power supply but unfortunately things did not go well but I did find a work around but I might try this idea again but going at a little differently more about this another time...
                07-01-2024, 06:34 AM
              • JimBanville
                Definitive technology SC 2000 subwoofer amp's power supply clicking and popping
                by JimBanville
                The sub developed a constant popping every couple seconds from woofer and power LED flickering with nothing but wall AC connected. Connecting an audio cable didn't change anything. It doesn't play but a second or two of audio in between the pops.
                Opened it up and discovered the power supply is making a faint clicking or ticking sound.
                I measured the amp's output to the woofer and it pulses up to 50mv DC to be driver. The pulses coincide with the power supply ticking/clicking.
                I measured the power supply output going to the amp board and it too has this pulsing. Voltage cycles...
                09-13-2023, 07:21 AM
              • sam_sam_sam
                Mitsubishi CNC switching power supply board dead / relay board bad diode failure
                by sam_sam_sam
                I was working on this CNC machine today found no keyboard functioning no control relay powering on
                The screen powered on and was giving an operation error but the manual was not very clear about what the error exactly was but with a little bit of troubleshooting and finding out that the control relays not powering on and no keyboard functions we narrowed down to this one switching power supply which of course does not have any indicator LED light they are on the keyboard interface/relay controller board

                Found shorted diodes on main controller relays there are 3 of them that...
                01-07-2023, 05:43 PM
              • Loading...
              • No more items.
              Working...