Samsung SMPS BN44-00339A

Collapse
X
 
  • Time
  • Show
Clear All
new posts
  • Loretto
    New Member
    • Mar 2025
    • 9
    • Italy

    #1

    Samsung SMPS BN44-00339A


    Hi all,
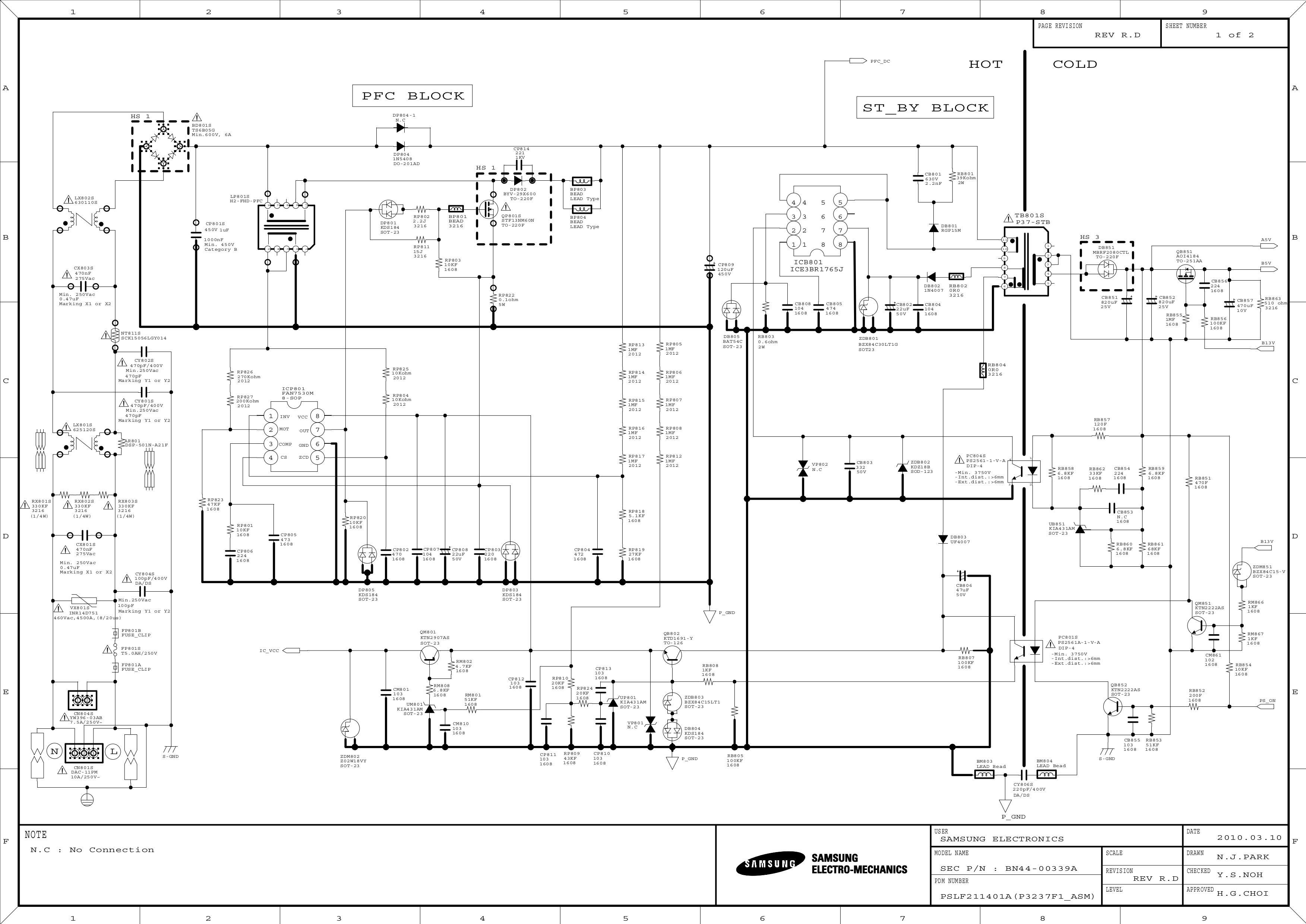
    this unit comes from a samsumg LCD TV LE32C530F1W which stopped working after making a strong noise like something was exploded inside of it.
    I opened it and found that fuse FP801S was blown, capacitor CP814 was completely disintegrated and MOSFET QP801S was shorted.
    I replaced all of them and instead of the fuse I connected a 100 Watt bulb. Then, without connecting it to other TV boards, I switched it on, but the bulb begun to blink.
    I thought that maybe the bulb was somehow interfering with the normal operation of the power supply, so I replaced it with a fuse, ... and boom !!! I burnt again the MOSFET QP801S I just replaced.
    I had another one, so I replaced it again and did some more tests.

    I checked all the electrolytic capacitors and noone seemed to be bulged or leaking: also the measure of the capacitance was good (don't know about ESR).
    I checked the photocouplers and they seemed to be good, at least for the section of the infrared led: do not know about the phototransistor on the other side.

    I found out that connecting PS_ON to cold ground, I had a stable 5 Volts on A5V (stand-by voltage) and the bulb stopped blinking.
    In this situation, I measured the voltage on the legs of the main filter capacitor CP809 and I had a stable 324 Volts (our mains in Italy is 200 Volts).
    But if I connected PS_ON to A5V, all the output voltages of the power supply became unstable and the voltage on the legs of CP809 was about 300 Volts, which was not good at all.

    So I ordered a new ICP801 (FAN7530M) and a new ICM801 (FSFR1800US) and replaced both of them.

    At the beginning, with PS_ON connected to A5V, everything seemed to be working: I even measured stable 13 Volts and 24 Volts and the voltage on the legs of CP809 reached about 415 Volts.
    But then I begun to hear strange noises and didn't understand where they were coming from.
    I rapidly switched everything off and noticed that CP809 (120 uF / 450 Volts) was warm and now seemed bulged, on both sides (top and bottom).

    I replaced it temporarily with something similar (150 uF / 400 Volts) but the story is the same, if not worse: the bulb is steady on and all the output voltages are unstable.
    Now, even the voltage on the legs of CP809 is fluctuating, from 100 to 300 Volts ... while, if I connect PS_ON to cold ground, everything works like before.

    I replaced resistor RP822: nothing changed.

    I measured CM801S without disconnecting it from the board and it seems good.

    Resistor RM803 seems good too: anyway, when PS_ON is connected to A5V, as soon as I plug the power supply, the voltage across it is e few millivolts (less then 10) and then goes to 0. Is it normal ?

    I really don't know what else to do: I played all my cards. Any suggestion ?

    Thanks.
    Attached Files
  • EazyBone
    Badcaps Legend
    • Jun 2023
    • 1353
    • United states

    #2
    Pictures of board I don't download pdfs because of security

    Here's a link to a repair kit. I would check these items

    https://www.ebay.com/itm/27683646718...mis&media=COPY



    https://www.ebay.com/itm/31654714827...mis&media=COPY

    Also $14 with coupon. At this price I'd just buy the board.

    But potentially those items in the repair kit are bad, looks like you have replaced a couple of them
    Last edited by EazyBone; 03-28-2025, 10:38 AM.

    Comment

    • Loretto
      New Member
      • Mar 2025
      • 9
      • Italy

      #3

      Yes, I replaced all of them except for the diode which should be DP804 (but I checked it and should be ok) and the DIP IC (ICB801, ICE3BR1765J), which is responsible for the standby voltage (which is ok, in my opinion).

      Thank you for your response.
      Attached Files

      Comment

      • Loretto
        New Member
        • Mar 2025
        • 9
        • Italy

        #4
        By the way, thanks for te links. As for the replacement board, unfortunately that customer does not sent it to my country. And here in Italy I can find it, but the price is not less than 30€, shipping charges included.

        Anyway, now it's a matter of principle: I would like to find the faulty component, at least in order to learn something more.

        If you need any board pictures, I can take some and upload them here ...

        Comment

        • EazyBone
          Badcaps Legend
          • Jun 2023
          • 1353
          • United states

          #5
          I don't blame ya, as a matter of principle and all the effort in. I'm not sure. I know there is a power supply section in here also. May be useful to post there too? I can only provide basic info I'm not advanced enough

          Comment

          • Loretto
            New Member
            • Mar 2025
            • 9
            • Italy

            #6
            I know you guys couldn't wait anymore to see how things ended up with this power supply, could you ?

            So finally, here I am for the epilogue ...

            To sum up, it was necessary to replace FP801S, QP801S twice (as you know, something went wrong while troubleshooting), CP814 (all blown) and ICP801 twice: the first time just to check if it was the reason of the failure, the second time because it measured only 6 Ohm between Pin 1 (INV) and Pin 6 (hot ground).

            Then, during the tests, CP809 began to bulge, so I replaced it as well ...

            At the end, when I had already lost all my hopes and didn't know what else to do, I replaced even ICM801, but perhaps this was not necessary ...

            But the real fix consisted in replacing all the SMD resistors from RP813 to RP817 as they were completely out of value. Furthermore, even though I disconnected the side of RP817 that connects to RP818, CP804 and Pin 4 of ICP801 (there was a jumper which I could easily desolder from the board), the total value of the 5 resistors was different depending on the polarity of the multimeter: in one direction it seemed a capacitor was charging ... Absurd !!!

            After removing all the 5 resistors, the tracks on which they were soldered, although apparently separated/isolated from everything else, showed a resistance towards other components around, between 200 KOhm and 1 MOhm (?!?) so, I decided to remove those pads and mount the new SMD resistors in a different position ...

            Unfortunately, at that moment, I didn't know yet that finally the power supply was working, because actually, the 100 Watt bulb connected in place of the fuse wasn't staying off as I thought it should, but it was lighting up shortly, then was going off shortly again, to turn then back on forever.

            By chance I noticed that if I connected the digital multimeter (ampere mode) in series with RP822 (the PFC block current sense resistor), the light bulb, after turning on and off, lighted up dimly and then turned off permanently ... The multimeter was reading between 10 mA and 20 mA ...

            So, I removed the multimeter and replaced RP822 with a 2 Ohm resistor: the second flash of the light bulb was at full brightness but then it turned off forever ...

            Increasing RP822 to 5 Ohm, the second flash of the light bulb was dimmer than before, and then it turned off forever ...

            Remove, or not remove (the bulb): that was the question !!!

            If you still remember, the first time I replaced CP814 and QP801S, the bulb begun to blink: hoping it was somehow interfering with the normal operation of the power supply, I replaced it with a fuse and ... damn, I burnt QP801S again !!!

            Now, you have to know that when I lost all my hopes to fix this power supply (more than once, indeed), I gave in and purchased a working second hand one ...

            As soon as I received it, after checking that it was working also with the PS_ON connected to A5V, I replaced its fuse with the 100 Watt light bulb, which remained turned on just like with my BN44-00339A under service.

            So fingers crossed, I decided to replace the light bulb with the fuse on my bad power supply as well and magically, even with the PS_ON connected to A5V, nothing blew, the 395 Volts appeared on CP809 (*) and all the output voltages were correct and stable.

            (*) 318 Volts with PS_ON connected to cold ground, for the record ...

            Closing with, the lesson is: don't blindly trust the bulb since sometimes it can stay on even if everything is fine, especially if the power supply has a PFC block. In that case try to increase the current sense resistor and if the bulb turns off, restore the old resistor, say a prayer and try removing the bulb ...

            Hope this can be helpful to somebody else.

            Cheers.​

            Comment

            Related Topics

            Collapse

            • Loretto
              Samsung SMPS BN44-00339A
              by Loretto
              Hi all,
              this unit comes from a samsumg LCD TV LE32C530F1W which stopped working after making a strong noise like something was exploded inside of it.
              I opened it and found that fuse FP801S was blown, capacitor CP814 was completely disintegrated and MOSFET QP801S was shorted.
              I replaced all of them and instead of the fuse I connected a 100 Watt bulb. Then, without connecting it to other TV boards, I switched it on, but the bulb begun to blink.
              I thought that maybe the bulb was somehow interfering with the normal operation of the power supply, so I replaced it with a fuse,...
              03-29-2025, 08:30 AM
            • repair-it
              TOSHIBA DLP 52HM95 How to reset timer module on bulb
              by repair-it
              I replaced the bulb only on my Toshiba DLP The bulb is a TB-25. This is the first time I've done a bulb only replacement. Supposedly there is a timer module that needs to be re-calibrated or reset. I don't know where the module is located. I see some vendors selling the bulb with the housing stating module included which leads me to think the module is located inside the enclosure the bulb mounts in, but I didn't see it. Maybe it's inside the plug attached to the bulb?

              Anyway - I am seeking information on how to reset this so called module so that the lamp will operate. Apparently...
              10-11-2023, 07:18 PM
            • ezenia
              LUMIMAN Smart Bulb IC ID?
              by ezenia
              Hi,

              I have a LUMIMAN Smart Bulb that suddenly stopped lighting one day. The bulb is still detected in the app, but won't light. I've probed around and nothing seems to look off with any of the diodes, caps or resistors. The Bluetooth/Wi-Fi module seems to be working as it's still detected in the app. I even tried deleting and re-pairing the bulb (it didn't light, but I was still able to follow the pairing instructions), it re-paired fine, but still no light.

              In diode mode, the LEDs all light up when probed so I'm guessing this means the LEDs themselves are OK. I was expecting...
              04-28-2025, 05:56 PM
            • supermattch
              HP 15dy-2021nr wont power on mystery volts
              by supermattch
              Hi everyone.

              I am diagnosing my personal laptop, because it wont power on and no leds light up.

              At the dc-in there are 8 pins, 1 and 2 shows healthy 19.66 volts. The next three are ground, but the 6th one shows .283 volts. This is strange to me, it should be 3.3 or 5 or aome volts not 0.283v. As I am new to this, I would like some guidance. Please someone advise me on what to check next.

              Oh the boardview and schematics I am using is for a similar model as I cannot find the proper one anywhere. Quanta DA0P5HMB8F1 rev F. Nowhere on the internet.
              09-23-2025, 12:13 PM
            • shamsudeen
              Hi, Can we use SMPS Bench Power Supply for Laptop troubleshooting?
              by shamsudeen
              Hi all, I just need to know that, can i use SMPS type power supply to test and short circuit detection on a laptop motherboard?
              I saw 95% of repair guys are using only Linear bench power supply. linear bench power supply is pricy, thats why i planned to get one SMPS supply.

              i know that in linear power supply the noise will be very low comparing to SMPS supply....
              07-19-2025, 07:14 AM
            • Loading...
            • No more items.
            Working...