Denon AVR-2700 no display

Collapse
X
 
  • Time
  • Show
Clear All
new posts
  • Caleb
    Smokin IC's
    • Feb 2013
    • 645
    • USA

    #1

    Denon AVR-2700 no display

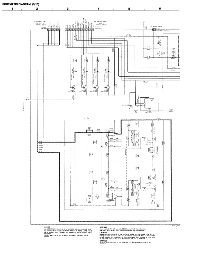
    Have this unit in for repair. Initially it went into protect, I found and replaced a 5v reg and a 12v reg and it now powers up and plays music. However the display just barely lights and doesnt display anything. I have 5v to the vcc of the ic that controls the display, -33v on the other feed pin and -24v to the outside rails of the display lcd. I am thinking the ic is bad, however I have not ever run into that before, am I missing something here? All the buttons on the front work, and volume control works as well. schematics for this portion of the circuit attached. I see a pin labeled chip enable, does anyone know what signal this requires?
    Attached Files

    if you find these attachements useful please consider making a small donation to the site

    Last edited by Caleb; 06-05-2014, 09:29 AM.
    Liberating magic smoke one part at a time
  • budm
    Badcaps Legend
    • Feb 2010
    • 40746
    • USA

    #2
    Re: Denon AVR-2700 no display

    How about the filament voltage?
    Can you upload the service manual so we can look at it?
    Last edited by budm; 06-05-2014, 09:43 AM.
    Never stop learning
    Basic LCD TV and Monitor troubleshooting guides.
    http://www.badcaps.net/forum/showthr...956#post305956

    Voltage Regulator (LDO) testing:
    http://www.badcaps.net/forum/showthr...999#post300999

    Inverter testing using old CFL:
    http://www.badcaps.net/forum/showthr...er+testing+cfl

    Tear down pictures : Hit the ">" Show Albums and stories" on the left side
    http://s807.photobucket.com/user/budm/library/

    TV Factory reset codes listing:
    http://www.badcaps.net/forum/showthread.php?t=24809

    Comment

    • stj
      Great Sage 齊天大聖
      • Dec 2009
      • 31304
      • Albion

      #3
      Re: Denon AVR-2700 no display

      i'm willing to bet the display drive involves an electrolytic.
      i used to see this all the time on VCR's
      i cant remember what the cap did, but i used to replace them with a 1uf multi-layer ceramic and they never failed again.

      i see an electrolytic in the foto to the left of the display!
      Last edited by stj; 06-05-2014, 10:25 AM.

      Comment

      • Caleb
        Smokin IC's
        • Feb 2013
        • 645
        • USA

        #4
        Re: Denon AVR-2700 no display

        I tried to upload the service manual. Its over 20 mb, I'll try to get a working link for you. I put it up on ET but it doesnt show up now. Is the filament voltage on the ends of the display? If so -24v. I will swap out that cap when I get home tonight and see if that does the trick. thanks for the ideas.
        Last edited by Caleb; 06-05-2014, 01:09 PM.
        Liberating magic smoke one part at a time

        Comment

        • jetadm123
          Badcaps Legend
          • Feb 2010
          • 2169

          #5
          Re: Denon AVR-2700 no display

          In your first photo, is that cap directly under the display leaking on the bottom? Or is just the lighting?

          Comment

          • Caleb
            Smokin IC's
            • Feb 2013
            • 645
            • USA

            #6
            Re: Denon AVR-2700 no display

            No its not leaking, its left over dust around the cap, this must have been in a garage as it was filthy inside
            Liberating magic smoke one part at a time

            Comment

            • Caleb
              Smokin IC's
              • Feb 2013
              • 645
              • USA

              #7
              Re: Denon AVR-2700 no display

              I put in two new caps just below and to the right of the display, and have same symptoms. Budm sending you a Pm with a link to the SM
              Liberating magic smoke one part at a time

              Comment

              • budm
                Badcaps Legend
                • Feb 2010
                • 40746
                • USA

                #8
                Re: Denon AVR-2700 no display

                OK, I am downloading it from HIFIENGINE.
                Never stop learning
                Basic LCD TV and Monitor troubleshooting guides.
                http://www.badcaps.net/forum/showthr...956#post305956

                Voltage Regulator (LDO) testing:
                http://www.badcaps.net/forum/showthr...999#post300999

                Inverter testing using old CFL:
                http://www.badcaps.net/forum/showthr...er+testing+cfl

                Tear down pictures : Hit the ">" Show Albums and stories" on the left side
                http://s807.photobucket.com/user/budm/library/

                TV Factory reset codes listing:
                http://www.badcaps.net/forum/showthread.php?t=24809

                Comment

                • budm
                  Badcaps Legend
                  • Feb 2010
                  • 40746
                  • USA

                  #9
                  Re: Denon AVR-2700 no display

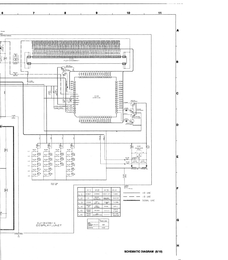
                  OK, look at the pin out of the FLD on service manual page 28 (not the PDF page), you will see F1 and F2 for the filament, the power transformer (the two brown wires, on page 55) supplies the filament voltage, see service manual page 53 connector CN025 (not sure about the last digit).
                  If you look at the darkened room , you can actually see orange glow of very small wires inside the display.
                  Last edited by budm; 06-05-2014, 10:16 PM.
                  Never stop learning
                  Basic LCD TV and Monitor troubleshooting guides.
                  http://www.badcaps.net/forum/showthr...956#post305956

                  Voltage Regulator (LDO) testing:
                  http://www.badcaps.net/forum/showthr...999#post300999

                  Inverter testing using old CFL:
                  http://www.badcaps.net/forum/showthr...er+testing+cfl

                  Tear down pictures : Hit the ">" Show Albums and stories" on the left side
                  http://s807.photobucket.com/user/budm/library/

                  TV Factory reset codes listing:
                  http://www.badcaps.net/forum/showthread.php?t=24809

                  Comment

                  • Caleb
                    Smokin IC's
                    • Feb 2013
                    • 645
                    • USA

                    #10
                    Re: Denon AVR-2700 no display

                    F1 and F2 were where I measured -24v, I think that portion is working ok as it does light a little, like its primed and ready but receiving no data to display. I took a picture of it in a dark room attached below
                    Attached Files

                    if you find these attachements useful please consider making a small donation to the site

                    Liberating magic smoke one part at a time

                    Comment

                    • budm
                      Badcaps Legend
                      • Feb 2010
                      • 40746
                      • USA

                      #11
                      Re: Denon AVR-2700 no display

                      The filament ( which is Cathode) voltage is around 3VAC or so, you can measure it right at the two brown wires from the transformer, it must be getting filament voltage otherwise you will not see the display on the screen. It looks like the segments are not driven properly by the IC.
                      Never stop learning
                      Basic LCD TV and Monitor troubleshooting guides.
                      http://www.badcaps.net/forum/showthr...956#post305956

                      Voltage Regulator (LDO) testing:
                      http://www.badcaps.net/forum/showthr...999#post300999

                      Inverter testing using old CFL:
                      http://www.badcaps.net/forum/showthr...er+testing+cfl

                      Tear down pictures : Hit the ">" Show Albums and stories" on the left side
                      http://s807.photobucket.com/user/budm/library/

                      TV Factory reset codes listing:
                      http://www.badcaps.net/forum/showthread.php?t=24809

                      Comment

                      • Caleb
                        Smokin IC's
                        • Feb 2013
                        • 645
                        • USA

                        #12
                        Re: Denon AVR-2700 no display


                        Ok i will check for ac voltages, should have thought of that since those feed wires are coming straight out of the transformer. but it looks like we may be back around to a def ic anyhow
                        Last edited by Caleb; 06-06-2014, 09:32 AM.
                        Liberating magic smoke one part at a time

                        Comment

                        • budm
                          Badcaps Legend
                          • Feb 2010
                          • 40746
                          • USA

                          #13
                          Re: Denon AVR-2700 no display

                          I believe you must be getting the filament voltage, otherwise the display will not glow like that.
                          Never stop learning
                          Basic LCD TV and Monitor troubleshooting guides.
                          http://www.badcaps.net/forum/showthr...956#post305956

                          Voltage Regulator (LDO) testing:
                          http://www.badcaps.net/forum/showthr...999#post300999

                          Inverter testing using old CFL:
                          http://www.badcaps.net/forum/showthr...er+testing+cfl

                          Tear down pictures : Hit the ">" Show Albums and stories" on the left side
                          http://s807.photobucket.com/user/budm/library/

                          TV Factory reset codes listing:
                          http://www.badcaps.net/forum/showthread.php?t=24809

                          Comment

                          • Caleb
                            Smokin IC's
                            • Feb 2013
                            • 645
                            • USA

                            #14
                            Re: Denon AVR-2700 no display

                            Any likelihood that one or more of those little transistors next to the ic could cause a fault like this? I guess I will rig up some test points for the cricket and test them out anyway.
                            Liberating magic smoke one part at a time

                            Comment

                            • budm
                              Badcaps Legend
                              • Feb 2010
                              • 40746
                              • USA

                              #15
                              Re: Denon AVR-2700 no display

                              From looking at the pictures, the dot matrix display has all the dots glowing? The other section seems nice and bright, I.E. TUNER, DVD indicators.
                              Never stop learning
                              Basic LCD TV and Monitor troubleshooting guides.
                              http://www.badcaps.net/forum/showthr...956#post305956

                              Voltage Regulator (LDO) testing:
                              http://www.badcaps.net/forum/showthr...999#post300999

                              Inverter testing using old CFL:
                              http://www.badcaps.net/forum/showthr...er+testing+cfl

                              Tear down pictures : Hit the ">" Show Albums and stories" on the left side
                              http://s807.photobucket.com/user/budm/library/

                              TV Factory reset codes listing:
                              http://www.badcaps.net/forum/showthread.php?t=24809

                              Comment

                              • stj
                                Great Sage 齊天大聖
                                • Dec 2009
                                • 31304
                                • Albion

                                #16
                                Re: Denon AVR-2700 no display

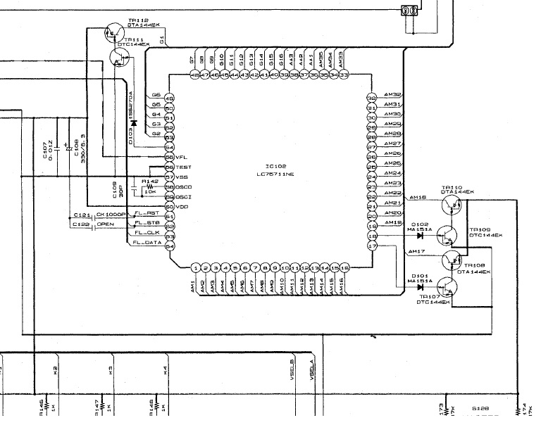
                                the driver chip has an interesting pin on it marked VFL - i cant see where it goes but it's an interesting thing to check.

                                Comment

                                • Caleb
                                  Smokin IC's
                                  • Feb 2013
                                  • 645
                                  • USA

                                  #17
                                  Re: Denon AVR-2700 no display

                                  While it seems bright in the picture it is not when viewed in normal lighting, and even more so after the tinted plastic cover goes back on. You really have to look carefully to see its on. My next question.. is this going to be a proprietary ic to drive the display or is it a standard display driver
                                  Liberating magic smoke one part at a time

                                  Comment

                                  • budm
                                    Badcaps Legend
                                    • Feb 2010
                                    • 40746
                                    • USA

                                    #18
                                    Re: Denon AVR-2700 no display

                                    One thing is that you have -33V and -24V which is the difference of about 9V so I am not sure that is enough difference potential between the Cathode and the Anode to give out enough brightness. I will need to look at the spec of the driver to see what it should be. VFD (Vacuum Fluorescent Display) operates in the same way as Vacuum tube , Cathode, Grid, Anode (Plate).
                                    Last edited by budm; 06-06-2014, 12:44 PM.
                                    Never stop learning
                                    Basic LCD TV and Monitor troubleshooting guides.
                                    http://www.badcaps.net/forum/showthr...956#post305956

                                    Voltage Regulator (LDO) testing:
                                    http://www.badcaps.net/forum/showthr...999#post300999

                                    Inverter testing using old CFL:
                                    http://www.badcaps.net/forum/showthr...er+testing+cfl

                                    Tear down pictures : Hit the ">" Show Albums and stories" on the left side
                                    http://s807.photobucket.com/user/budm/library/

                                    TV Factory reset codes listing:
                                    http://www.badcaps.net/forum/showthread.php?t=24809

                                    Comment

                                    • Caleb
                                      Smokin IC's
                                      • Feb 2013
                                      • 645
                                      • USA

                                      #19
                                      Re: Denon AVR-2700 no display

                                      I was looking at the vfl and I believe I tested it at -33vdc. when comparing pinouts I noticed a discrepancy between the schematic and the pinout so I pulled the datasheet and the schematic is correct, also noticed the resistor capacitor network to run the clock, will have to test that when I get home.
                                      Attached Files

                                      if you find these attachements useful please consider making a small donation to the site

                                      Last edited by Caleb; 06-06-2014, 12:56 PM.
                                      Liberating magic smoke one part at a time

                                      Comment

                                      • jetadm123
                                        Badcaps Legend
                                        • Feb 2010
                                        • 2169

                                        #20
                                        Re: Denon AVR-2700 no display

                                        I took a very quick look at the owner's manual. If you select the setup button on the front panel, it should display a system setting menu that allows you to change panel brightness. May/may not work, since the manual covers several different models.

                                        Comment

                                        Related Topics

                                        Collapse

                                        Working...