Acer Nitro 5 LA-H501P Not Charging, Not Powering On

Collapse
X
 
  • Time
  • Show
Clear All
new posts
  • Growtopia Jaw
    Member
    • Aug 2023
    • 36
    • Malaysia

    #21
    ACIN - 1.8V
    DCIN - 19V
    ACOK - 0V

    Comment

    • mon2
      Badcaps Legend
      • Dec 2019
      • 14801
      • Canada

      #22
      ACIN is too low. This is a voltage that is created by the resistor based voltage divider @ PRB7 and PRB11. Together, they will accept the high adapter voltage of ~19 volts and lower it to a safe value for the charger IC. If this safe voltage is higher than the threshold, then the power adapter is considered to be worthy to power the logic board else the DCin mosfets will remain OFF.

      It appears that this ISL (Intersil) part wants a threshold of 2 volts or higher.

      Reference calculator:
      https://www.digikey.ca/en/resources/...oltage-divider

      Click image for larger version

Name:	vout.png
Views:	422
Size:	52.1 KB
ID:	3182734

      Suggest to remove all power -> meter in a high resistance scale (higher than 500k ohms) -> measure the resistance across PRB7. It should be ~499k ohms. Repeat for PRB11 which should be ~66k5 ohms.

      Unless the ACIN voltage is above 2 volts, the charger IC will not offer the boosted gate voltage to enable the DCin mosfets. The mosfets are like gate keepers / mother-in-laws for the main power rail.

      Comment

      • Growtopia Jaw
        Member
        • Aug 2023
        • 36
        • Malaysia

        #23
        I've took measurements of PRB7 and PRB11. I got

        PRB7: 450k ohm in 100k range
        PRB11: 60k ohm in 100k range

        PRB7: 90k ohm in 1k range
        PRB11: 65k ohm in 1k range

        both doesn't make sense when put into digikey voltage divider calculator since they are 2.24V and 7.97V respectively whereas when measured directly in ACIN pin it's still 1.8V
        Last edited by Growtopia Jaw; 01-21-2024, 09:01 AM.

        Comment

        • mon2
          Badcaps Legend
          • Dec 2019
          • 14801
          • Canada

          #24
          Post a pic of the meter face for these measurements. Be sure that there is no power to the board during these resistance checks.

          PRB7: 450k ohm in 100k range
          PRB11: 60k ohm in 100k range​
          It is not possible to measure 450k ohms if the meter is in the 100k scale. This means the max resistance this meter setting can measure is 100k and all else will be reported as '1' = over limit. Then you must select a higher resistance scale on your meter. Also measure the exact voltage output of your power adapter. It must be ~19 volts or higher. With this adapter voltage and with proper resistors @ PRB7 and PRB11, you should have ~2v2 for the voltage at the output of this voltage divider. If it is under 2 volts, the charger IC will not function properly.

          Comment

          • Growtopia Jaw
            Member
            • Aug 2023
            • 36
            • Malaysia

            #25
            I have an analog Sanwa YX360TRF multimeter and if not mistaken, according to its spec sheet

            Click image for larger version  Name:	image.png Views:	0 Size:	907 Bytes ID:	3183051

            source: YX360TRF | Sanwa Electric Instrument Co., Ltd. (sanwa-meter.co.jp)

            I've also did 0 ohms adjustment everytime I changed the range for accuracy
            Last edited by Growtopia Jaw; 01-21-2024, 09:13 AM.

            Comment

            • mon2
              Badcaps Legend
              • Dec 2019
              • 14801
              • Canada

              #26
              My suggestion is to pickup a digital meter from Amazon or similar to make this measurement a bit easier. While I grew up with an analog meter from Radio Shack, the digital ones were not on the market at that time. A Fluke brand is a good one to source if available. Many manufacturers from Taiwan produce a quality meter - there is a long thread on eevblog on how to purchase a quality multimeter.

              https://eevblog.store/products/eevblog-bm235-multimeter

              https://www.youtube.com/watch?v=ymJc5oxthlw

              https://www.amazon.ca/EEVblog-BM235-.../dp/B01JZ1ADCO

              Comment

              • Growtopia Jaw
                Member
                • Aug 2023
                • 36
                • Malaysia

                #27
                I'll try to obtain a digital multimeter. In the meantime, here is the photo as requested

                PRB7:

                Click image for larger version

Name:	image.png
Views:	433
Size:	1.63 MB
ID:	3183064

                PRB11:

                Click image for larger version

Name:	image.png
Views:	363
Size:	1.87 MB
ID:	3183065 ​

                Comment

                • mon2
                  Badcaps Legend
                  • Dec 2019
                  • 14801
                  • Canada

                  #28
                  The analog meter measurement will depend on your observation of the meter pin so it is an approximation. Best to use a digital meter but in the end, the ACIN voltage is what matters.

                  PRB7: 450k ohm in 100k range
                  PRB11: 60k ohm in 100k range
                  should read as:

                  PRB7: 450k ohm in x100k range
                  PRB11: 60k ohm in x100k range​
                  since any measurement on this scale should be multiplied by x100k ohms. The final ACIN voltage on the Digikey calculator is also without a load so that is a factor as well. Using the same calculator, you can select other resistors that you may have to increase the ACIN voltage to be above 2 volts to trigger the charger IC mosfets. Be sure to double check the resistors and their values before powering on else the ACIN voltage may shoot over the max limit and cause damage to the charger IC. At this time, suspect the fault is with these resistors or the power adapter voltage is lower than expected. The calculations are based on the power adapter being ~19 volts or higher.

                  Comment

                  • Growtopia Jaw
                    Member
                    • Aug 2023
                    • 36
                    • Malaysia

                    #29
                    I'm back with a Kyoritsu Model 1009 DMM.

                    PRB7: 0.485M ohm
                    PRB11: 64.8k ohm

                    Comment

                    • mon2
                      Badcaps Legend
                      • Dec 2019
                      • 14801
                      • Canada

                      #30
                      The measurements look close to the expected values. Measure the voltage to ground of ACIN.

                      Comment

                      • Growtopia Jaw
                        Member
                        • Aug 2023
                        • 36
                        • Malaysia

                        #31
                        Got 49mV on ACIN.

                        Edit: Got confused between pins. Correct voltages below.

                        Comment

                        • Growtopia Jaw
                          Member
                          • Aug 2023
                          • 36
                          • Malaysia

                          #32
                          Sorry, I got confused between ACIN and ACIN_CHG.

                          ACIN aka pin #1 is 2.308V
                          ACOK aka pin #2 is 49mV

                          Main voltage rail is 19.63V

                          Didn't manage to measure pin #18.

                          Unfortunately I burnt something while measuring DCIN on pin #18.

                          Comment

                          • mon2
                            Badcaps Legend
                            • Dec 2019
                            • 14801
                            • Canada

                            #33
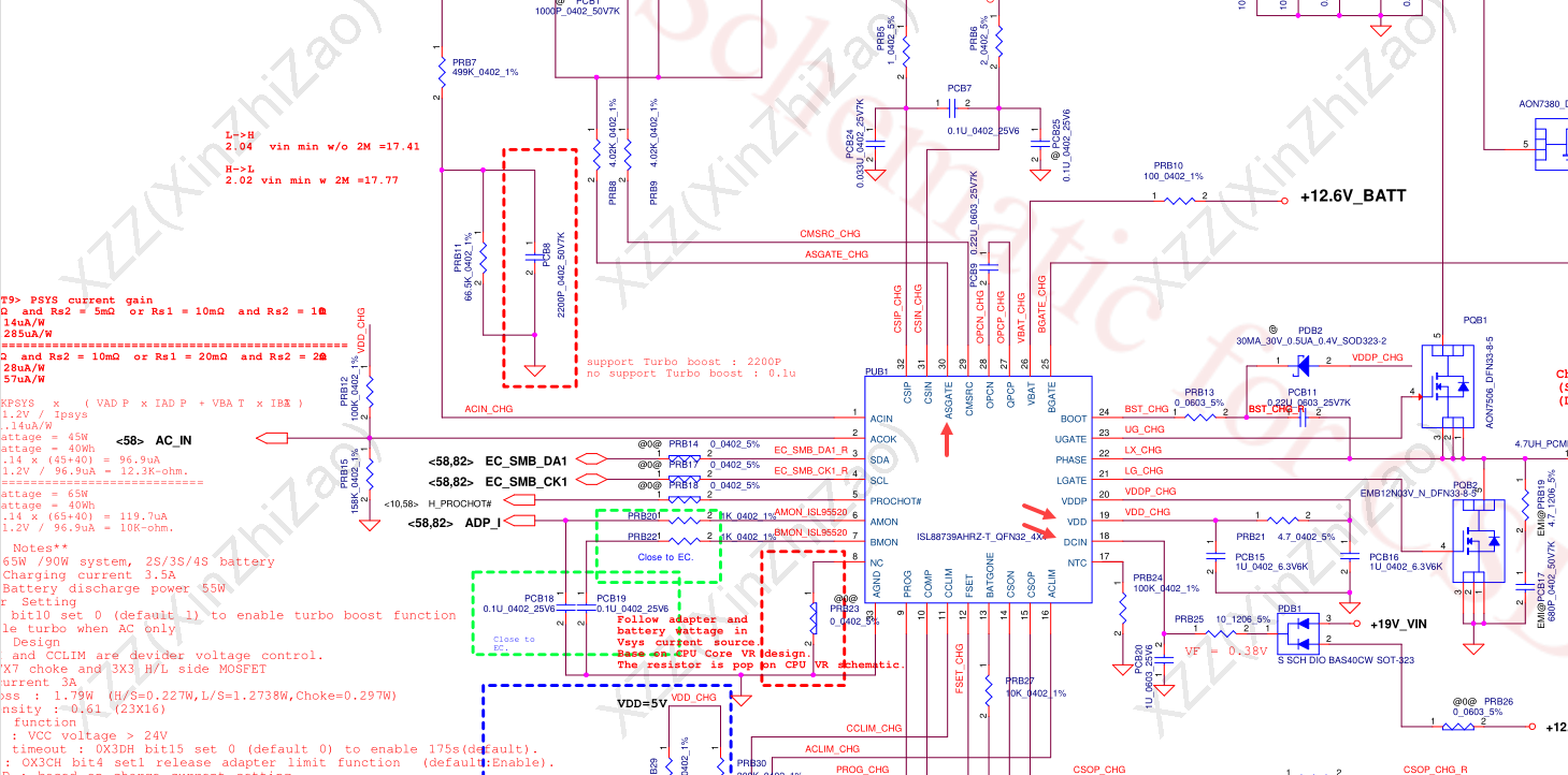
                            Pin #18 on the charger ic? Post a clear pic of the region and part that may be defective.

                            ACIN is high enough to be ok.

                            measure (carefully), voltage of:

                            ACDRV ; should be ~25v to enable the dcin mosfets
                            REGN ; should be ~6 volts

                            on the charger IC.

                            Comment

                            • Growtopia Jaw
                              Member
                              • Aug 2023
                              • 36
                              • Malaysia

                              #34
                              I might've accidentally shorted the pins between #17 and #18 / #18 and #19 due to the leads being too big. It released a little smoke and I've put a stapler piece in place temporarily for the red probe to make the leads smaller.

                              Not sure which pins are ACDRV and REGN. I don't see it in schematics and boardview.

                              Comment

                              • mon2
                                Badcaps Legend
                                • Dec 2019
                                • 14801
                                • Canada

                                #35
                                Yes, small probe tips are mandatory for this line of work. Check Aliexpress for such fine tip probes that are often compatible across the meters. The labels are different for your ISL charger IC vs. the very popular devices from Texas Instruments but the same idea.

                                See attached. Carefully measure the voltage to ground of these pins to determine if the charger IC is defective or not.

                                Click image for larger version

Name:	charger_ic.png
Views:	412
Size:	318.5 KB
ID:	3205486

                                Comment

                                • Growtopia Jaw
                                  Member
                                  • Aug 2023
                                  • 36
                                  • Malaysia

                                  #36
                                  Looks like everything became 0V other than a few like

                                  ACIN / pin #1 = 2.308V
                                  DCIN / pin #18 = 19.28V

                                  ACOK / pin #2 = 0V
                                  ASGATE / pin #30 = 0V
                                  VDD / pin #19 = 0V

                                  Seems like I burnt the charging IC. Luckily I've bought spares and have around 5 of them. Might be back tomorrow after soldering the charging IC

                                  Comment

                                  • mon2
                                    Badcaps Legend
                                    • Dec 2019
                                    • 14801
                                    • Canada

                                    #37
                                    VDD / pin #19 = 0V
                                    Yes - this is the LDO output rail that is required to create the boost voltage and other low current legs of the circuit. This line should be ~6 volts (like it is on the BQ series charger IC).

                                    Suggest to flux and carefully remove to replace this IC. Practice on donor boards if required but use ample heat but low air pressure to get the job done. The concern is to be not making the surrounding parts fly off to across the room yet low enough heat to pull off the part. Be patient and do not burn the board with too much heat. Aluminum foil is good to protect parts that may be nearby.

                                    Be sure to note the position of pin #1 of this original part before starting.

                                    Comment

                                    • Growtopia Jaw
                                      Member
                                      • Aug 2023
                                      • 36
                                      • Malaysia

                                      #38
                                      I've soldered on a new charging IC.

                                      ACIN / pin #1 = 2.308V
                                      ACOK / pin #2 = 49mV
                                      DCIN / pin #18 = 19.28V
                                      VDD / pin #19 = 3.95V
                                      ASGATE / pin #30 = 0V

                                      Comment

                                      • mon2
                                        Badcaps Legend
                                        • Dec 2019
                                        • 14801
                                        • Canada

                                        #39
                                        Remove all power. Measure the resistance to ground of VDD pin #19.

                                        On the gate pin of both dcin mosfets is a 4K ohm resistor that is driven by the asgate pin on the charger ic. Carefully flux and remove it but do not lose this part. Then power up again with the adapter. What is the voltage to ground on each side of this removed resistor pad on the pcb? We are testing if the boosted gate voltage is present or not from the charger ic.

                                        Comment

                                        • Growtopia Jaw
                                          Member
                                          • Aug 2023
                                          • 36
                                          • Malaysia

                                          #40
                                          I got 110k ohm on VDD pin #19 to GND.

                                          I've removed both resistors PRB8 and PRB9 and it looks like I'm only getting a few millivolts on both PRB8 and PRB9 resistor pads.

                                          Edit: 5.8mV on CMSRC_CHG
                                          8.6V on +19V_P1

                                          0V on ASGATE_CHG
                                          No reading on N16860566

                                          I'm not sure why I'm getting inconsistent readings on all four of the pads. The values shift sometimes and just to make sure it isn't the probe's fault, I crossed both probes and am getting 0V which should indicate the probes are working fine.

                                          Click image for larger version  Name:	image.png Views:	0 Size:	25.9 KB ID:	3205738

                                          Comment

                                          Related Topics

                                          Collapse

                                          Working...